Meadow Lane, Ryhall

£1,150pcm
Let
This property listing is now Let

3 Bedroom Semi-Detached House for rent in Ryhall

2 3 1
  • Much Improved Three-Bedroom Semi-Detached Home
  • Ample Off-Road Parking
  • Set in a Quiet Cul-De-Sac Position
  • 2 Reception Rooms
  • Modern, Neutral feel throughout
  • Single detached Garage
  • Please refer to attached Key Facts for Tenants - Material Information Disclosures


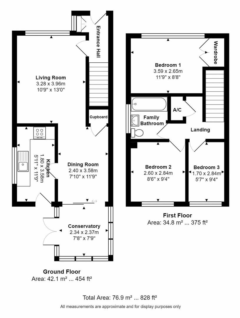
The house offers ample space for living accommodation comprising 2 reception rooms, conservatory as well as a refitted kitchen. On the first floor there are 2 double bedrooms and 1 single bedroom and a modern refitted bathroom with shower over the bath. Externally to the front is driveway providing parking for several vehicles. To the rear of the house is an enclosed grass garden and a single garage.

Agents Note:
Holding Deposit - £265.00
Tenancy Security Deposit – £1326
Local Authority – South Kesteven District Council
Council Tax Band – B
EPC Rating - C

Entrance Hall

Living Room
10' 9'' x 13' 0'' (3.27m x 3.96m)

Dining Room
7' 10'' x 11' 9'' (2.39m x 3.58m)

Conservatory
7' 8'' x 7' 9'' (2.34m x 2.36m)

Kitchen
5' 11'' x 11' 9'' (1.80m x 3.58m)

Landing

Bedroom 1
11' 9'' x 8' 8'' (3.58m x 2.64m)

Bedroom 2
8' 6'' x 9' 4'' (2.59m x 2.84m)

Bedroom 3
5' 7'' x 9' 4'' (1.70m x 2.84m)

Family Bathroom


Sizes and dimensions are calculated using a laser measuring modelling device and as such whilst representative it must be noted that they are all approximate, actual sizes may vary.

Important Information

  • This Council Tax band for this property is: B
  • EPC Rating is C

Property Ref: 43069_34220552

Share:

Similar Properties

Braemar Close, Stamford

3 Bedroom Semi-Detached House | £1,150pcm

Situated in a prime position at the end of a quiet cul-de-sac, this well-presented three-bedroom semi-detached home offe...

Doughty Street, Stamford

3 Bedroom Semi-Detached House | £1,150pcm

Extremely well presented 3 bedroom semi detached home in a sought after Stamford location, offering two reception rooms,...

Ravel Close, Stamford

3 Bedroom Townhouse | £1,150pcm

Spacious 3 storey, 3 bedroom townhouse with off street parking in a sought after part of Stamford close to local ameniti...

Riverside Place, Stamford

2 Bedroom Flat | £1,195pcm

A generously proportioned two-bedroom top-floor apartment ideally situated in the heart of town, just a short stroll fro...

Arran Road, Stamford

3 Bedroom Semi-Detached House | £1,195pcm

Extremely well presented, high-specification two/three-bedroom home that’s been completely modernised throughout - featu...

Haddon Road, Stamford

3 Bedroom Semi-Detached House | £1,195pcm

Welcome to 22 Haddon Road, a beautifully refurbished three-bedroom semi-detached home tucked away in a peaceful no-throu...

Goodwin Property (Stamford)

St Johns Street, Stamford, Lincolnshire, PE9 2DA

01780 750000

How much is your home worth?

Use our short form to request a valuation of your property.

Request a Valuation
©2026 The Guild of Property Professionals. All rights reserved. Terms and Conditions | Privacy Policy | Cookie Policy | Complaints Policy | Members Login
The Guild of Property Professionals Trading Address: 121 Park Lane, London W1K 7AG. GPEA Limited. Registered in England & Wales.  Company No: 02819824.  Registered Office Address: 2 St. Stephen's Court, St. Stephen's Road, Bournemouth, Dorset, England, BH2 6LA.  VAT Registration No: 576 8795 61
Book a Property Valuation Update Cookies Preferences