Braemar Close, Stamford

£1,150pcm
Let
This property listing is now Let

3 Bedroom Semi-Detached House for rent in Stamford

2 3 1
  • Three-bedroom semi-detached home
  • Quiet cul-de-sac position
  • Popular residential location
  • Open-plan living and dining room
  • Garage conversion providing flexible living space
  • Driveway with off-street parking
  • Available from January 2026
  • Close to local schools
  • Please refer to attached Key Facts for Tenants for Material Information Disclosures


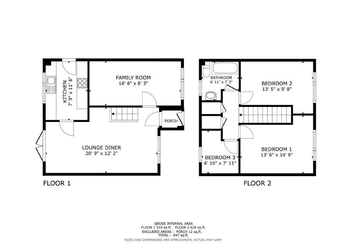
The accommodation briefly comprises an entrance hall leading into a bright and spacious open-plan living and dining room, ideal for modern family living and entertaining. The kitchen is well arranged and offers practical workspace and storage, with access to the rear garden. The converted garage now provides a valuable additional room, adaptable to a variety of needs. To the first floor are three well-proportioned bedrooms and a family bathroom. Externally, the property features a driveway to the front providing off-street parking, with a grassed area to the side. To the rear is a low-maintenance garden, offering a private and practical outdoor space.

Agents Note
Holding Deposit - £265
Tenancy Security Deposit – £1326
Local Authority – South Kesteven District Council
Council Tax Band –
EPC Rating -

Porch

Lounge Diner
6.32m x 3.71m (20'9" x 12'2")

Family Room
5.03m x 2.51m (16'6" x 8'3")

Kitchen
2.36m x 3.51m (7'9" x 11'6")

Landing

Bedroom 1
4.11m x 3.28m (13'6" x 10'9")

Bedroom 2
4.09m x 2.95m (13'5" x 9'8")

Bedroom 3
2.08m x 2.41m (6'10" x 7'11")

Bathroom
2.11m x 2.21m (6'11" x 7'3")


Sizes and dimensions are calculated using a laser measuring modelling device and as such whilst representative it must be noted that they are all approximate, actual sizes may vary.

Important Information

  • This Council Tax band for this property is: B
  • EPC Rating is D

Property Ref: 43069_34370882

Share:

Similar Properties

Ravel Close, Stamford

3 Bedroom Townhouse | £1,150pcm

Spacious 3 storey, 3 bedroom townhouse with off street parking in a sought after part of Stamford close to local ameniti...

Meadow Lane, Ryhall

3 Bedroom Semi-Detached House | £1,150pcm

Set in the popular Rutland village of Ryhall the property is conveniently located close to local amenities including a s...

Doughty Street, Stamford

3 Bedroom Semi-Detached House | £1,150pcm

Extremely well presented 3 bedroom semi detached home in a sought after Stamford location, offering two reception rooms,...

Riverside Place, Stamford

2 Bedroom Flat | £1,195pcm

A generously proportioned two-bedroom top-floor apartment ideally situated in the heart of town, just a short stroll fro...

Arran Road, Stamford

3 Bedroom Semi-Detached House | £1,195pcm

Extremely well presented, high-specification two/three-bedroom home that’s been completely modernised throughout - featu...

Haddon Road, Stamford

3 Bedroom Semi-Detached House | £1,195pcm

Welcome to 22 Haddon Road, a beautifully refurbished three-bedroom semi-detached home tucked away in a peaceful no-throu...

Goodwin Property (Stamford)

St Johns Street, Stamford, Lincolnshire, PE9 2DA

01780 750000

How much is your home worth?

Use our short form to request a valuation of your property.

Request a Valuation
©2026 The Guild of Property Professionals. All rights reserved. Terms and Conditions | Privacy Policy | Cookie Policy | Complaints Policy | Members Login
The Guild of Property Professionals Trading Address: 121 Park Lane, London W1K 7AG. GPEA Limited. Registered in England & Wales.  Company No: 02819824.  Registered Office Address: 2 St. Stephen's Court, St. Stephen's Road, Bournemouth, Dorset, England, BH2 6LA.  VAT Registration No: 576 8795 61
Book a Property Valuation Update Cookies Preferences