Ravel Close, Stamford

£1,150pcm
Let Agreed
This property listing is now Let Agreed

3 Bedroom Townhouse for rent in Stamford

1 3 2
  • Stamford Location
  • 3 Storey Townhouse
  • Parking and Enclosed Garden
  • 3 Bedrooms
  • 2 Bathrooms
  • Modern Interior
  • Available from January 2026
  • EPC Rating C
  • Please see Keys Facts for Tenants for Material Information Disclosures


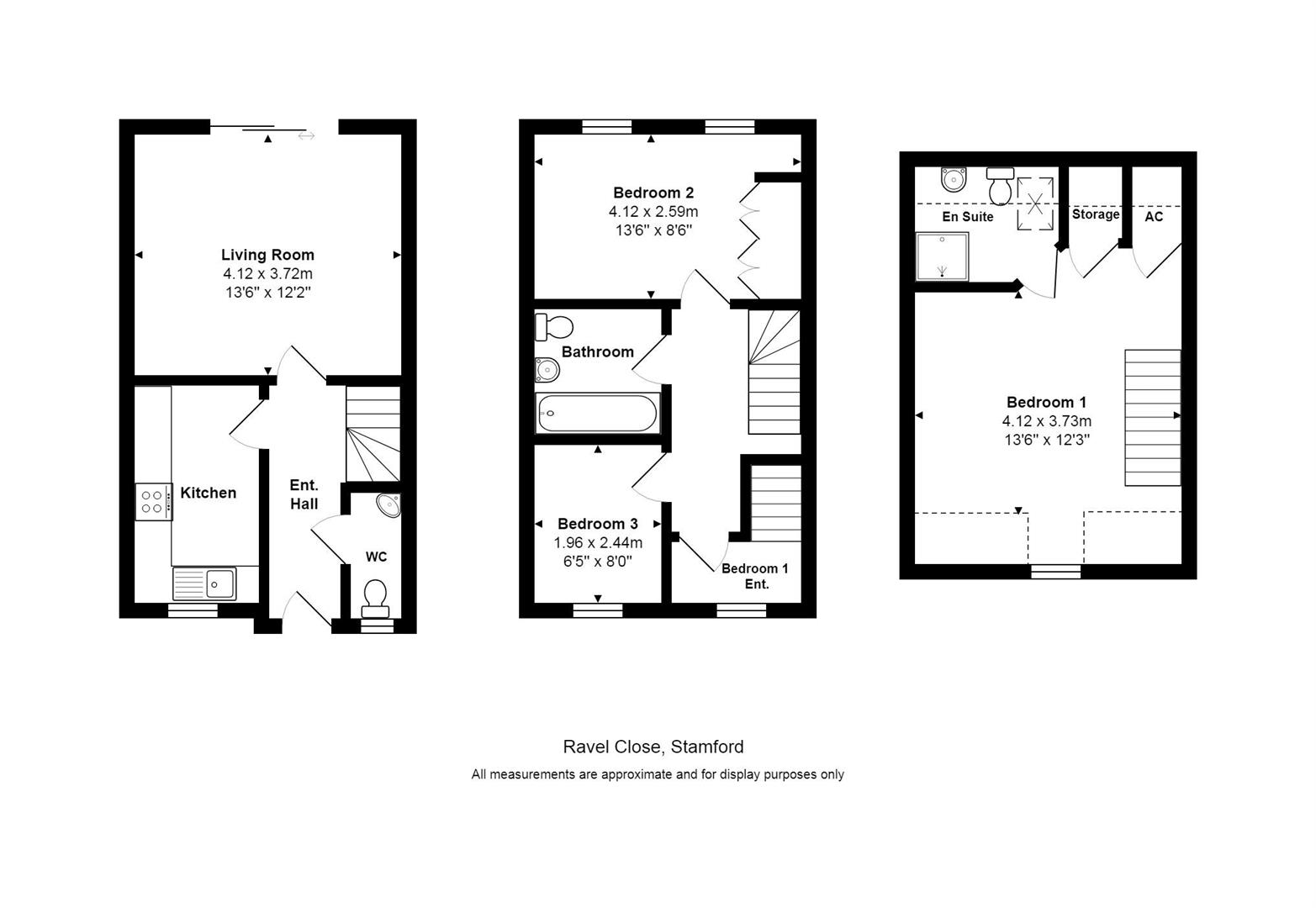
Well-proportioned Property, the ground floor includes a lounge with sliding patio doors to the rear, a modern kitchen with some appliances and a downstairs cloakroom. On the first floor there is a double bedroom with built-in wardrobes, a single bedroom to the rear and a family bathroom. On the second floor is a large double bedroom with storage cupboard and en suite shower room. Externally to the rear is an enclosed grass garden with side gate leading to the front and rear gate allowing access to the designated off-road parking area.

Agent Note:
Holding Deposit - £265
Security Deposit – £1326
Local Authority – South Kesteven District Council
Council Tax Band – B
EPC Rating - C

Entrance Hall

Kitchen

Living Room
4.12 x 3.72 (13'6" x 12'2")

First Floor Landing

Bedroom 2
4.12 x 2.59 (13'6" x 8'5")

Bedroom 3
1.96 x 2.44 (6'5" x 8'0")

Family Bathroom

Master Bedroom
4.12 x 3.73 (13'6" x 12'2")

Ensuite Shower Room

Enclosed Rear Garden

Designated Off Street Parking


Sizes and dimensions are calculated using a laser measuring modelling device and as such whilst representative it must be noted that they are all approximate, actual sizes may vary

Important Information

  • This Council Tax band for this property is: B
  • EPC Rating is C

Property Ref: 43069_34336622

Share:

Similar Properties

Braemar Close, Stamford

3 Bedroom Semi-Detached House | £1,150pcm

Situated in a prime position at the end of a quiet cul-de-sac, this well-presented three-bedroom semi-detached home offe...

Doughty Street, Stamford

3 Bedroom Semi-Detached House | £1,150pcm

Extremely well presented 3 bedroom semi detached home in a sought after Stamford location, offering two reception rooms,...

Meadow Lane, Ryhall

3 Bedroom Semi-Detached House | £1,150pcm

Set in the popular Rutland village of Ryhall the property is conveniently located close to local amenities including a s...

Riverside Place, Stamford

2 Bedroom Flat | £1,195pcm

A generously proportioned two-bedroom top-floor apartment ideally situated in the heart of town, just a short stroll fro...

Arran Road, Stamford

3 Bedroom Semi-Detached House | £1,195pcm

Extremely well presented, high-specification two/three-bedroom home that’s been completely modernised throughout - featu...

Haddon Road, Stamford

3 Bedroom Semi-Detached House | £1,195pcm

Welcome to 22 Haddon Road, a beautifully refurbished three-bedroom semi-detached home tucked away in a peaceful no-throu...

Goodwin Property (Stamford)

St Johns Street, Stamford, Lincolnshire, PE9 2DA

01780 750000

How much is your home worth?

Use our short form to request a valuation of your property.

Request a Valuation
©2026 The Guild of Property Professionals. All rights reserved. Terms and Conditions | Privacy Policy | Cookie Policy | Complaints Policy | Members Login
The Guild of Property Professionals Trading Address: 121 Park Lane, London W1K 7AG. GPEA Limited. Registered in England & Wales.  Company No: 02819824.  Registered Office Address: 2 St. Stephen's Court, St. Stephen's Road, Bournemouth, Dorset, England, BH2 6LA.  VAT Registration No: 576 8795 61
Book a Property Valuation Update Cookies Preferences