Grenville Court, Butleigh

£925,000

5 Bedroom Detached House for sale in Glastonbury

2 5 4
  • Exclusive development of just 15 homes situated on the edge of the highly sought-after village of Butleigh
  • One of the largest plots on the development, backing onto open fields
  • Impressive five bedroom detached home with spacious, light-filled accommodation over three floors
  • High specification finish throughout with modern fittings and a beautifully designed family layout
  • Stunning open-plan kitchen/dining/living space with integrated appliances and Rangemaster hob
  • Principal suite with dressing room, ensuite, balcony and views towards Glastonbury Tor
  • Ample driveway parking and double garage, ideal for vehicles, storage or home gym use
  • Excellent location for Millfield School with convenient access to surrounding towns and countryside

A superbly presented five bedroom detached home, arranged over three floors and occupying one of the largest plots within an exclusive development of just fifteen individually designed properties. Tucked away on the fringes of the highly sought-after village of Butleigh the property backs onto open fields and is set within a quiet position offering is a rare opportunity to secure both space and privacy in a prime village setting close to Millfield School. Available with no onward chain.

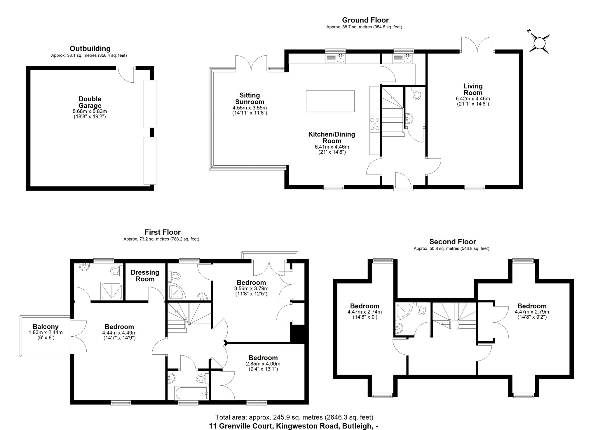
Accommodation
This impressive family home offers beautifully balanced accommodation arranged over three floors, finished to an exceptional standard throughout and designed with modern family living in mind. Abundant with light, space and flexibility throughout along with generous proportions this beautiful property adapts perfectly to both everyday life and entertaining.
The welcoming ground floor centres around a stunning open-plan family kitchen - a wonderful, sociable space forming the heart of the home. The kitchen is fitted with modern wall and base units, integrated appliances, central island and a freestanding Rangemaster hob, providing both style and practicality. The room flows seamlessly into the dining and orangery style sitting sunroom area, where double doors open directly onto the garden, drawing in natural light and creating an excellent connection to the outside. A useful utility room sits just off the kitchen, providing additional storage, sink and housing the boiler and washer/dryer. From the hallway there is access to a modern cloakroom. Completing the ground floor is separate living room which
again is generous in proportion, enjoying a focal stone mantel fireplace and double doors opening onto the rear garden, further enhancing the indoor–outdoor feel.
The first floor hosts three generous double bedrooms. The impressive principal suite enjoys a dressing room, ensuite shower room and doors opening onto a private west-facing balcony, with lovely views stretching towards Glastonbury Tor. The second bedroom also benefits from an ensuite shower room and Juliet balcony, while the third bedroom is a comfortable double, currently used as a
home office. A stylish family bathroom, fitted with bath, basin and WC and complemented by modern tiling, serves this floor.
The second floor provides two further generous bedrooms, ideal for children or guests, sharing access to a shower room. This level offers fantastic versatility and a sense of independence from the main bedroom accommodation.

Outside
Outside there is a large garden, mostly laid to lawn with some mature planting at the border. This fantastic plot offers a blank canvas for any budding gardener, or excellent play area for young families. There is gated access to the garden from both sides of the property.
To the front of the property there is ample off street parking for multiple vehicles on the block paved driveway leading to the detached double garage with electric up and over doors. From here, there is an internal pedestrian door leading to the garden.

Location
Butleigh is a favoured village situated amidst gently rolling countryside 3 miles from Street and 4 miles from Glastonbury. Butleigh provides a primary school, church and popular Sourdown Farm with cafe, shop, and pop-up pub, 'The Sourdown Tap'. The historic market town of Glastonbury provides a range of facilities including a Morrisons Supermarket, a choice of pubs and restaurants and St Dunstan's Community School. Millfield Prep School is situated on the edge of the town at Edgarley. Street provides a further choice of shops including the bustling Clarks Village with its range of factory outlets. Street also has a theatre, sixth form college, indoor and open air swimming pools, health centre, Sainsburys Supermarket and Millfield Senior School. The centres of Wells, Bath, Bristol and Taunton are approximately 10, 29, 31 and 24 miles respectively.

Directions
From Street/Glastonbury take the Butleigh Road and continue through Butleigh Wootton and past the entrance to the village. Continue along Sub Road and turn left on Kingweston Road. Turn immediately left into Grenville Court and bear to the right, then left, where number 11 can be found at the end of the development.

Material Information
All available property information can be provided upon request from Holland & Odam. For confirmation of mobile phone and broadband coverage, please visit checker.ofcom.org.uk

Identity Verification
To ensure full compliance with current legal requirements, all buyers are required to verify their identity and risk status in line with anti-money laundering (AML) regulations before we can formally proceed with the sale. This process includes a series of checks covering identity verification, politically exposed person (PEP) screening, and AML risk assessment for each individual named as a purchaser. In addition, for best practice, we are required to obtain proof of funds and where necessary, to carry out checks on the source of funds being used for the purchase. These checks are mandatory and must be completed regardless of whether the purchase is mortgage-funded, cash, or part of a related transaction. A disbursement of £49 per individual (or £75 per director for limited company purchases) is payable to cover all aspects of this compliance process. This fee represents the full cost of conducting the required checks and verifications. You will receive a secure payment link and full instructions directly from our compliance partner, Guild365, who carry out these checks on our behalf.

Important Information

  • This is a Freehold property.

Property Ref: 665667_FMV959086

Share:

Similar Properties

Woodlands House, Havyatt, Glastonbury, Somerset

6 Bedroom Detached House | £870,000

Fabulous five bedroom detached house, having two reception rooms and large open plan kitchen/dining/family room. The own...

Behind Town Lane, Compton Dundon

4 Bedroom Detached House | £800,000

Tucked away at the end of Behind Town Lane in the sought-after village of Compton Dundon, Hill View House is a striking...

Cooke's Lane, Henley

4 Bedroom Detached House | £795,000

For sale for the first time in 50 years this much loved family home is set in c.1.4 acres of mature garden and paddock a...

Queen Street, Keinton Mandeville

6 Bedroom Detached House | £990,000

The Brambles is a charming and substantial Victorian home dating back to 1891, located in the heart of Keinton Mandevill...

Keinton Mandeville, Somerton

6 Bedroom Detached House | £1,150,000

Set discreetly away from passing traffic, Kingswood House is a commanding contemporary home in excess of 5000 sq feet, p...

Holland & Odam (Glastonbury)

Glastonbury, Somerset, BA6 9DX

01458 833123

How much is your home worth?

Use our short form to request a valuation of your property.

Request a Valuation

Mortgage Calculator

Amount Borrowed: £
Total Amount Repayable: £
Total Monthly Payment: £
©2026 The Guild of Property Professionals. All rights reserved. Terms and Conditions | Privacy Policy | Cookie Policy | Complaints Policy | Members Login
The Guild of Property Professionals Trading Address: 121 Park Lane, London W1K 7AG. GPEA Limited. Registered in England & Wales.  Company No: 02819824.  Registered Office Address: 2 St. Stephen's Court, St. Stephen's Road, Bournemouth, Dorset, England, BH2 6LA.  VAT Registration No: 576 8795 61
Book a Property Valuation Update Cookies Preferences