Redcurrant Avenue, Berryfields, Aylesbury

Offers in excess of
£450,000

4 Bedroom Semi-Detached House for sale in Aylesbury

1 4 2
  • POPULAR BERRYFIELDS DEVELOPMENT
  • FOUR BEDROOM SEMI-DETACHED TOWNHOUSE
  • FIRST FLOOR LIVING ROOM WITH JULIET BALCONY
  • ENCLOSED REAR GARDEN
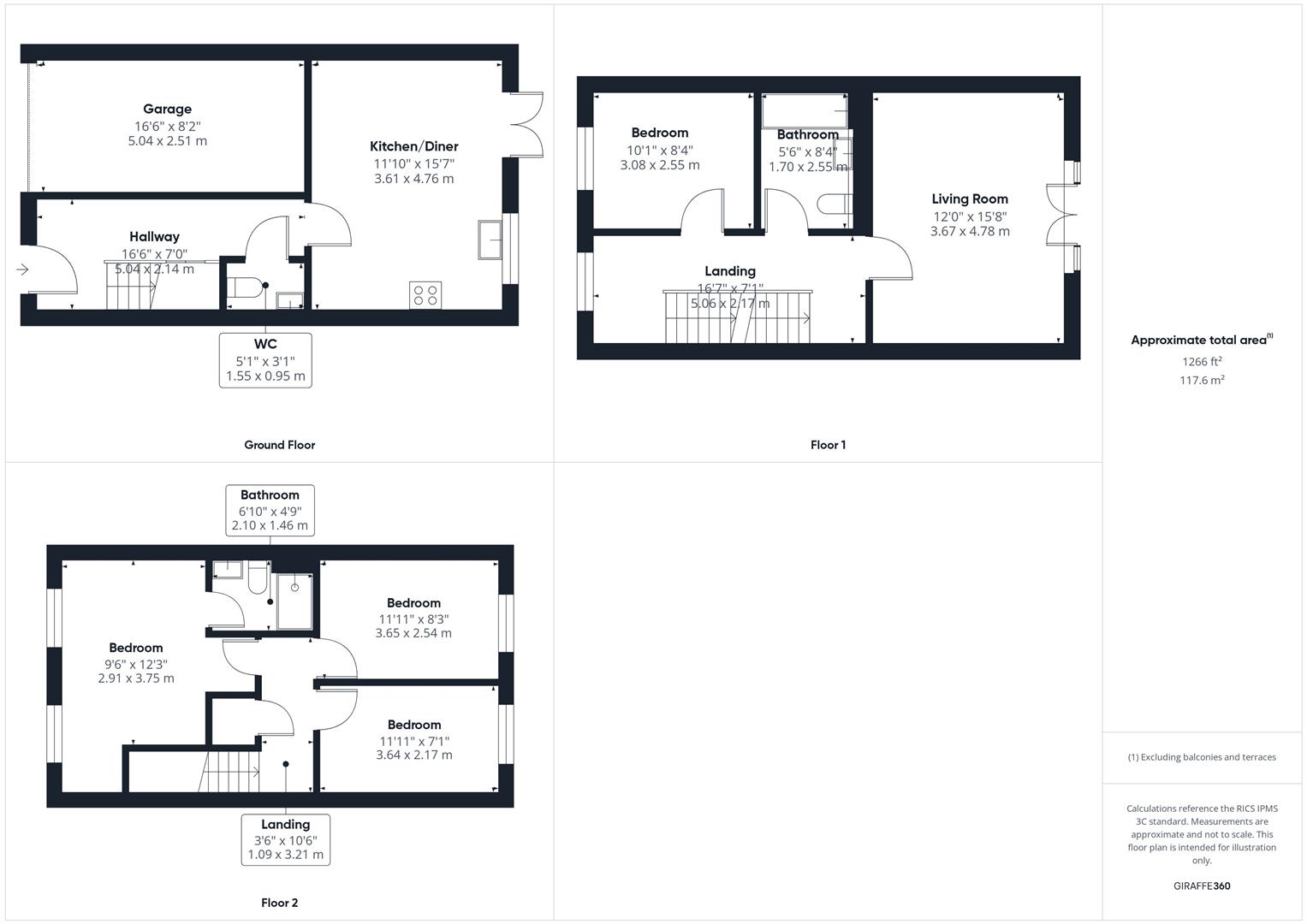
  • ARRANGED OVER THREE FLOORS
  • EN SUITE TO MASTER BEDROOM
  • GARAGE AND DRIVEWAY
  • CLOSE TO LOCAL AMENITIES, SCHOOLS & TRANSPORT LINKS

A spacious four bedroom semi-detached townhouse situated in the popular Berryfields development, arranged over three floors. The property features a modern kitchen/diner, downstairs cloakroom and a first floor living room. There are four bedrooms, including a master bedroom with en suite, along with a family bathroom. Outside benefits include a private garden, integral garage and driveway. An ideal family home in a popular location close to local amenities, schools and transport links.

Location - Berryfields is a modern development situated on the northern outskirts of Aylesbury surrounded by open countryside. The development benefits from good transport links by road towards Bicester/M40 and back to the town centre. The development is home to Aylesbury Parkway Station which offers mainline services into London Marylebone in just under an hour. There is a parade of shops and a Miller and Carter restaurant on the development as well as a secondary school and two primary schools, Berryfields C Of E Primary and Green Ridge Primary Academy.

Accommodation - Upon entering the property, you are welcomed into an entrance hall with stairs to the first floor, a cloakroom and a built in understairs cupboard. To the rear, the generous kitchen/diner features a range of modern fitted units with an inset gas hob, oven, grill and cooker hood, along with integrated appliances including a fridge/freezer, washing machine and dishwasher. There is ample space for a family dining table, and French doors open directly onto the rear garden.

On the first floor, there is a comfortable living room with a Juliet balcony, offering plenty of natural light and an attractive outlook. Also on this level is a family bathroom and a bedroom, ideal for guests or use as a study.

The second floor provides access to three further bedrooms, including a master bedroom with en suite shower room.

Outside, the rear garden is mainly laid to lawn with a paved patio area, perfect for outdoor dining and relaxation. There is gated access to the front of the property. There is an integral garage with light and power and driveway parking for additional convenience.

Property Ref: 6584685_34230834

Share:

Similar Properties

Tring Road, Aylesbury, Buckinghamshire

3 Bedroom Semi-Detached House | Offers in excess of £450,000

Benefitting from a DOUBLE STOREY EXTENSION to the front and rear this 1930's home is situated a a fantastic position wit...

Petronel Road, Buckingham Park, Aylesbury

5 Bedroom Semi-Detached House | £450,000

Set over three floors, this spacious semi-detached house offers flexible living space, ideal for families. The property...

Sorrel Way, Kingsbrook, Aylesbury

3 Bedroom Semi-Detached House | Offers in excess of £450,000

A stunning and extended three-bedroom, three-storey home located on the sought-after Kingsbrook development in Aylesbury...

Noble Crescent, Berryfields, Aylesbury

4 Bedroom Terraced House | £460,000

Spacious four bedroom terraced home set over three floors in the popular Berryfields development. The property offers ve...

Moore Crescent, Berryfields, Aylesbury

4 Bedroom Semi-Detached House | £460,000

A well presented four bedroom semi-detached home on the popular Berryfields development, offered with no upper chain. Th...

Upper Street, Tingewick, Buckinghamshire

3 Bedroom Bungalow | £465,000

A very well presented three bed DETACHED BUNGALOW situated in a quiet position at the heart of this popular village.

George David & Co (Aylesbury)

Aylesbury, Buckinghamshire, HP20 1SE

01296 393393

How much is your home worth?

Use our short form to request a valuation of your property.

Request a Valuation

Mortgage Calculator

Amount Borrowed: £
Total Amount Repayable: £
Total Monthly Payment: £
©2025 The Guild of Property Professionals. All rights reserved. Terms and Conditions | Privacy Policy | Cookie Policy | Complaints Policy | Members Login
The Guild of Property Professionals Trading Address: 121 Park Lane, London W1K 7AG. GPEA Limited. Registered in England & Wales.  Company No: 02819824.  Registered Office Address: 2 St. Stephen's Court, St. Stephen's Road, Bournemouth, Dorset, England, BH2 6LA.  VAT Registration No: 576 8795 61
Book a Property Valuation Update Cookies Preferences