Park Meadow, Doddinghurst Village, Brentwood.

Offers in excess of
£780,000

4 Bedroom Detached House for sale in Brentwood

2 4 1
  • FOUR BEDROOMS
  • BACKING ON TO FARMLAND
  • NEW DOUBLE-GLAZING THROUGHOUT
  • NEWLY FITTED CARPETS
  • NEW CLADDING & GUTTERING
  • WELL-FITTED KITCHEN
  • UTILITY ROOM
  • INTEGRAL DOUBLE LENGTH GARAGE

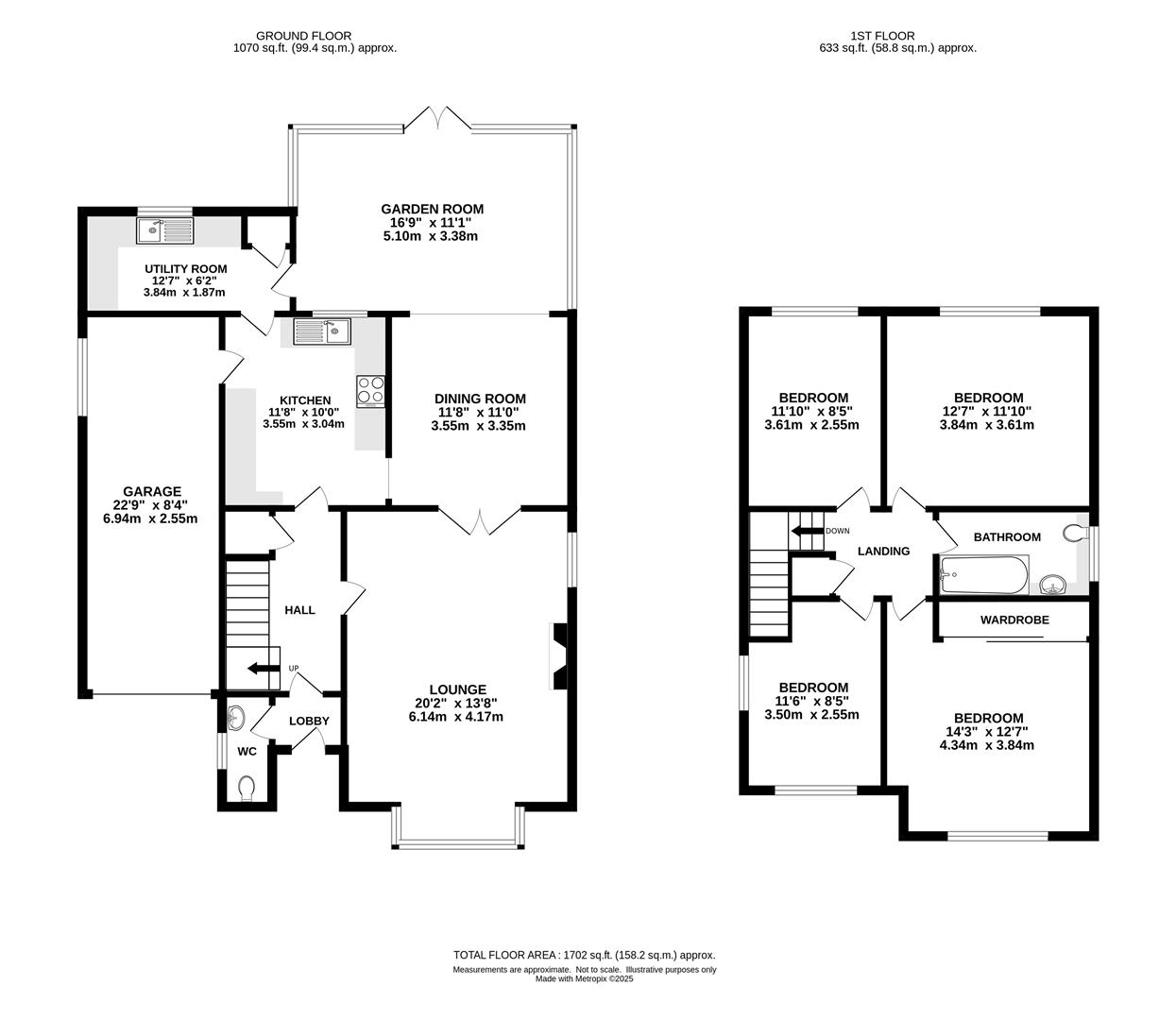
In a cul-de-sac setting overlooking a pleasant greensward and backing onto open fields is this extended and wonderfully spacious four bedroom detached house which has been well-maintained, and benefits from having new double-glazing throughout, new internal doors and street door, new cladding and guttering, new boiler, new carpets AND NO ONWARD CHAIN!! The property is positioned on the outskirts of Doddinghurst Village but is still within easy reach of all local amenities, including being a short drive to Brentwood and Shenfield Town centres where you will find high street shopping and mainline train services into London. Properties on this side of Park Meadow rarely come to the market and early booking is recommended to avoid disappointment.

Entering the property, you find yourself in the entrance lobby where you have access into the ground floor cloakroom. There is a further door which opens into the hallway where there are stairs rising to the first floor, doors into the living room and kitchen and a further door to a large storage cupboard under the stairs. The lounge is a spacious room with large box bay window to the front aspect, with views over the greensward to the front, whilst to the rear of the room there are French door which open into the dining room. The dining room is open plan to a stunning orangery, fitted by 'Trustwood Joinery' in Hutton. The Orangery enjoys beautiful views of the garden and fields beyond. Also off the dining room is a beautifully fitted kitchen with an excellent range of cream wall and base units with glass display cabinets and contrasting wooden work surfaces over, there is ample storage provided and integrated appliances include a gas hob with extractor above and electric oven below. There is further space for storage and appliances in a separate utility room which has wall and base units to match those of the kitchen, sink unit and drainer and a large cupboard which houses a new boiler. From the kitchen you have access into the integral garage.

Rising to the first floor you will find a spacious landing with access into the loft space, airing/storage cupboard and doors to all rooms. The property has four double bedrooms, two bedrooms to the front elevation have views over the greensward, whilst the remaining two bedrooms have beautiful views over farmland to the rear. Finishing the accommodation on this level is a large family bathroom which comprises of a panelled bath with shower over, wash hand basin set into a vanity unit and a close coupled w.c.

To the rear you will find a lovely garden which measures approximately 50' in length. Steps lead up to the lawn with borders that are planted with mature shrubs and there is a patio area and an arbour where you can sit and enjoy the lovely views the garden and fields beyond have to offer. There is pedestrian access to both sides of the property. To the front of the property an impregnated concrete driveway allows for parking for two vehicles with the remainder being laid to lawn which could potentially provide parking for up to four more cars if required.

Newly fitted front door leading into :

Entrance Porch - Further door to :

Entrance Hall - 3.40m x 2.18m (11'02 x 7'02) - Stairs to first floor and large storage cupboard.

Ground Floor Cloakroom - Wash hand basin and w.c.

Living Room - 6.15m x 4.17m (20'02 x 13'08) - With feature brick fireplace and double doors through to dining room. Bay window to front aspect.

Dining Room - 3.35m x 3.56m (11 x 11'08) - Opening to the kitchen and square opening through to:

Extended Conservatory - 5.11m x 3.38m (16'09 x 11'01) - Constructed by Trustwood Joinery in Hutton with a vaulted ceiling. Tiled floor and French doors leading on to the garden.

Kitchen - 3.56m x 3.05m (11'08 x 10) - Fitted with a range of wall and base units and wooden work surfaces with integrated appliances to include a four ring gas hob with extractor hood above and electric oven under. Door to garage and glazed door through to:

Utility Room - 3.61m x 1.88m (11'10 x 6'02) - Fitted with a range of units to match the kitchen with wooden work surfaces, stainless steel white enamel sink unit, fitted base units and wall cupboards. Large storage cupboard housing new wall mounted boiler.

Large Integral Garage - 7.01m x 2.54m (23 x 8'04) - With up and over door.

First Floor Landing - With access to loft. Cupboard housing lagged copper cylinder.

Bedroom One - 4.34m x 3.84m (14'03 x 12'7) - With fitted wardrobes and views over Greensward to the front.

Bedroom Two - 3.84m x 3.61m (12'07 x 11'10) - With field views to rear.

Bedroom Three - 3.61m x 2.51m (11'10 x 8'03) - With views over farmland

Bedroom Four - 3.51m x 2.51m (11'06 x 8'03) - With views over greensward to the front.

Bathroom - Fitted with a three piece suite comprising: panelled bath with shower and mixer taps, vanity wash hand basin with cupboards under, close coupled wc. Full height tiled walls.

Exterior - Rear Garden - Backing onto open fields. Commencing with patio leading into neat lawns with mature trees and shrubs. Side pedestrian access to both flanks. Arbour with built in seats overlooking fields to the rear of the garden to remain.

Exterior - Front Garden - With impregnated concrete driveway with parking for two vehicles and potential for more. The remainder of the garden is laid to neat lawns and fiower beds. Side access through to rear garden.

Agents Note - Fee Disclosure - As part of the service we offer we may recommend ancillary services to you which we believe may help you with your property transaction. We wish to make you aware, that should you decide to use these services we will receive a referral fee. For full and detailed information please visit 'terms and conditions' on our website www.keithashton.co.uk

Property Ref: 33769460

Share:

Similar Properties

Church Lane, Doddinghurst, Brentwood

4 Bedroom Detached House | Guide Price £775,000

With a beautifully landscaped rear garden, and a large driveway and detached garage providing excellent parking, we are...

Church Lane, Doddinghurst, Brentwood

4 Bedroom Detached House | Offers in excess of £775,000

Situated in a prominent position within the village of Doddinghurst is this beautifully maintained family home which off...

** SIGNATURE HOMES ** Ongar Road, Stondon Massey, Brentwood

4 Bedroom Semi-Detached House | Offers in excess of £775,000

We are delighted to bring to market this delightful GDII listed, four-bedroom, semi-detached property, full of character...

Plot 22 The Audley, Stocks Lane, Kelvedon Hatch CM15 0BN

4 Bedroom Detached House | £800,000

**MOVE FOR FREE - NO FEES, JUT KEYS!!** ** PLOT 22 - THE AUDLEY ** 4 Bedroom detached house - 1670 sq.ft of accommodatio...

Peartree Close, Doddinghurst

5 Bedroom Detached House | Offers in excess of £800,000

We are delighted to bring to market this beautifully presented five, double bedroom detached family home located in a qu...

Hook End Road

3 Bedroom Detached House | Guide Price £800,000

Set well-back from the road, and having a good-sized plot with a lovely mature rear garden measuring approximately 250'...

Keith Ashton Estates - Village Office (Kelvedon Hatch)

38 Blackmore Road, Kelvedon Hatch, Essex, CM15 0AT

01277 375757

How much is your home worth?

Use our short form to request a valuation of your property.

Request a Valuation

Mortgage Calculator

Amount Borrowed: £
Total Amount Repayable: £
Total Monthly Payment: £
©2026 The Guild of Property Professionals. All rights reserved. Terms and Conditions | Privacy Policy | Cookie Policy | Complaints Policy | Members Login
The Guild of Property Professionals Trading Address: 121 Park Lane, London W1K 7AG. GPEA Limited. Registered in England & Wales.  Company No: 02819824.  Registered Office Address: 2 St. Stephen's Court, St. Stephen's Road, Bournemouth, Dorset, England, BH2 6LA.  VAT Registration No: 576 8795 61
Book a Property Valuation Update Cookies Preferences