Cadogan Avenue, West Horndon, Brentwood

Guide Price
£550,000

3 Bedroom Semi-Detached House for sale in Brentwood

2 3 1
  • SEMI-DETACHED FAMILY HOME
  • MODERN KITCHEN/DINER
  • THREE BEDROOMS
  • GENEROUS REAR GARDEN
  • NO ONWARD CHAIN
  • DETACHED OUTBUILDING
  • WEST HORNDON STATION NEARBY
  • AMPLE OFF STREET PARKING

**Guide Price £550,000 - £600,000** We're delighted to bring to market this three-bedroom semi-detached family home, perfectly positioned in the welcoming village of West Horndon.

Offered with no onward chain, this lovely property features spacious ground floor living areas, ideal for everyday family life. The large rear garden provides plenty of room for outdoor entertaining, while a detached outbuilding offers great potential for a home office or studio.

West Horndon Station is just a short distance away, providing direct C2C services into London Fenchurch Street. The village also offers a friendly community feel, with local amenities and a well-regarded primary school close by.

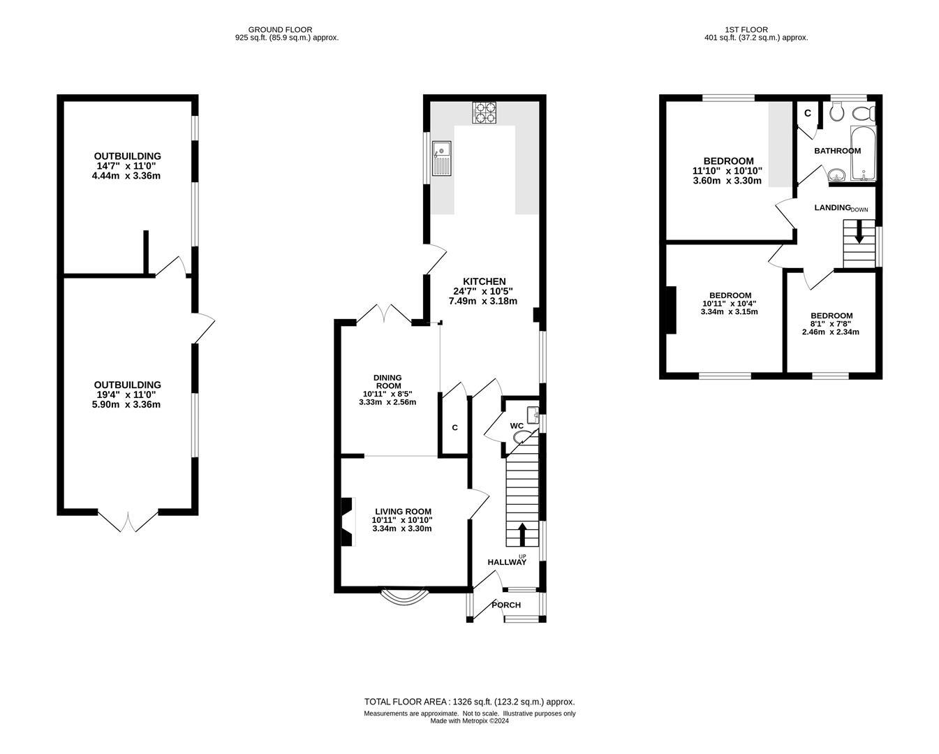
The internal accommodation begins with a welcoming entrance hall providing access to all areas of the home. To the front, the living room features a charming fireplace, creating a warm and inviting atmosphere. This space flows seamlessly into the dining area, where French doors open out to the rear garden, filling the room with natural light. The adjoining, well-appointed kitchen offers a range of eye and base level units, ample worktop space, and room for additional dining - perfect for family meals and entertaining.

Upstairs, there are three bedrooms, including two generous doubles and a comfortable single. The principal bedroom, located at the rear, benefits from fitted wardrobes, while the remaining two rooms enjoy views to the front. A family bathroom with bath, wash hand basin, and WC completes the accommodation.

Externally, the property enjoys a large rear garden, beginning with a block-paved patio ideal for outdoor dining and entertaining, with the remainder laid mainly to lawn and bordered by mature shrubs. A double-depth outbuilding provides excellent storage and offers potential for conversion into a home office, gym, or studio. To the front, a block-paved driveway offers off-street parking for multiple vehicles.

Entrance Hall -

Kitchen - 7.49 x 3.18 (24'6" x 10'5") -

Living Room - 3.34 x 3.30 (10'11" x 10'9") -

Dining Room - 3.33 x 2.56 (10'11" x 8'4") -

Wc -

Landing -

Bedroom One - 3.60 x 3.30 (11'9" x 10'9") -

Bedroom Two - 3.34 x 3.15 (10'11" x 10'4") -

Bedroom Three - 2.46 x 2.34 (8'0" x 7'8") -

Bathroom -

Outbuilding - 5390 x 3.36 (17683'8" x 11'0") -

Outbuilding - 4.44 x 3.36 (14'6" x 11'0") -

Agents Note - As part of the service we offer we may recommend ancillary services to you which we believe may help you with your property transaction. We wish to make you aware, that should you decide to use these services we will receive a referral fee. For full and detailed information please visit 'terms and conditions' on our website www.keithashton.co.uk

Property Ref: 8226_34326451

Share:

Similar Properties

Ongar Road, Brentwood

3 Bedroom Terraced House | Guide Price £550,000

**Guide Price £550,000 - £575,000** We are delighted to present this charming three-bedroom, Victorian mid-terrace cotta...

Hare Bridge Crescent, Ingatestone

4 Bedroom House | Guide Price £550,000

**Guide Price £550,000 - £600,000** We are pleased to present this beautifully appointed family home, nestled in the sou...

Roman Road, Mountnessing, Brentwood

3 Bedroom Semi-Detached House | £550,000

Nestled in the charming village of Mountnessing, Brentwood, is this delightful house on Roman Road. This property presen...

Burntwood Way, Brentwood

3 Bedroom Semi-Detached House | £575,000

GUIDE PRICE £575,000 - £600,000. Set in this quiet and peaceful cul-de-sac within the sought after area of West Brentwoo...

Eagle Way, Great Warley, Brentwood

4 Bedroom Detached House | £575,000

**GUIDE PRICE £575,000 - £600,000** Nestled in the charming area of Eagle Way, Great Warley, Brentwood, this stunning se...

Ongar Road, Pilgrims Hatch, Brentwood

3 Bedroom Detached Bungalow | £575,000

We are pleased to offer this detached bungalow, situated in the popular Pilgrims Hatch area and available with No Onward...

Keith Ashton Estates - Brentwood Office (Brentwood)

26 St. Thomas Road, Brentwood, Essex, CM14 4DB

01277 260858

How much is your home worth?

Use our short form to request a valuation of your property.

Request a Valuation

Mortgage Calculator

Amount Borrowed: £
Total Amount Repayable: £
Total Monthly Payment: £
©2026 The Guild of Property Professionals. All rights reserved. Terms and Conditions | Privacy Policy | Cookie Policy | Complaints Policy | Members Login
The Guild of Property Professionals Trading Address: 121 Park Lane, London W1K 7AG. GPEA Limited. Registered in England & Wales.  Company No: 02819824.  Registered Office Address: 2 St. Stephen's Court, St. Stephen's Road, Bournemouth, Dorset, England, BH2 6LA.  VAT Registration No: 576 8795 61
Book a Property Valuation Update Cookies Preferences