La Plata House, Brentwood

Guide Price
£525,000

2 Bedroom Apartment for sale in Brentwood

1 2 2
  • LUXURY GROUND FLOOR APARTMENT
  • STUNNING OPEN-PLAN LIVING AREA
  • TWO BEDROOMS
  • TWO BATHROOMS
  • EXCELLENT TRANSPORT LINKS NEARBY
  • GRADE II LISTED BUILDING
  • ATTRACTIVE COMMUNAL GARDENS
  • RESIDENTS PARKING

**Guide Price £525,000 - £550,000** We are delighted to offer this impressive ground floor apartment set within the beautiful Grade II Listed La Plata House, Brentwood. The property blends historic character with modern comfort and offers well-proportioned accommodation throughout.

Ideally located within walking distance of Brentwood Mainline Station, the apartment provides excellent transport links into London, with the High Street and highly regarded local schools also close by. A rare opportunity to acquire a character home in a highly convenient location.

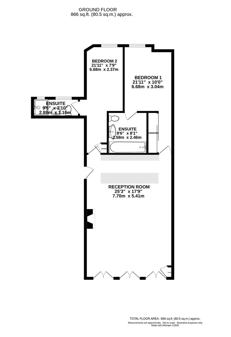
The accommodation is introduced by an impressive and light-filled reception room, featuring three sets of French doors that open onto and overlook the beautifully maintained gardens. This elegant space incorporates a comfortable lounge area with feature fireplace, alongside a sleek, fully fitted kitchen complete with integrated appliances and a breakfast bar.

The principal bedroom benefits from built-in wardrobes and a contemporary ensuite bathroom, while the second bedroom also enjoys the convenience of a stylish ensuite shower room.

Additional advantages include residents' parking, attractive communal grounds, and the benefit of the apartment's own patio and garden area, all set within a location that offers a rare balance of tranquillity and privacy while remaining close to local amenities and excellent transport links.

Kitchen/Lounge - 7.70 x 5.41 (25'3" x 17'8") -

Bedroom One - 6.68 x 3.04 (21'10" x 9'11") -

Ensuite - 2.58 x 2.46 (8'5" x 8'0") -

Bedroom Two - 6.68 x 2.37 (21'10" x 7'9") -

Ensuite - 2.88 x 1.16 (9'5" x 3'9") -

Agents Note - As part of the service we offer we may recommend ancillary services to you which we believe may help you with your property transaction. We wish to make you aware, that should you decide to use these services we will receive a referral fee. For full and detailed information please visit 'terms and conditions' on our website www.keithashton.co.uk

Property Ref: 34427602

Share:

Similar Properties

Robin Close, Billericay

3 Bedroom Semi-Detached Bungalow | Guide Price £525,000

**Guide Price £525,000 - £550,000** New to the market comes this immaculate three-bedroom bungalow, nestled in a peacefu...

Brocksparkwood, Brentwood

3 Bedroom Semi-Detached House | Guide Price £525,000

** Guide Price £525,000 - £550,000 ** Situated in a popular cul-de-sac backing onto woodland, this well-maintained three...

Wendover Gardens, Brentwood

3 Bedroom Detached House | Guide Price £525,000

**Guide Price £525,000 - £550,000** We are pleased to present this detached family home, offered with No Onward Chain, n...

Hanging Hill Lane, Brentwood

2 Bedroom Semi-Detached Bungalow | Guide Price £535,000

**GUIDE PRICE £535,000 - £550,000** We are pleased to offer for sale, this extended semi-detached bungalow in the sought...

Paglesfield, Hutton, Brentwood

4 Bedroom End of Terrace House | Guide Price £550,000

**Guide Price £550,000 - £575,000** We are delighted to present this spacious four-bedroom family home, nestled in a qui...

Roman Road, Mountnessing, Brentwood

3 Bedroom Semi-Detached House | £550,000

Nestled in the charming village of Mountnessing, Brentwood, is this delightful house on Roman Road. This property presen...

Keith Ashton Estates - Brentwood Office (Brentwood)

26 St. Thomas Road, Brentwood, Essex, CM14 4DB

01277 260858

How much is your home worth?

Use our short form to request a valuation of your property.

Request a Valuation

Mortgage Calculator

Amount Borrowed: £
Total Amount Repayable: £
Total Monthly Payment: £
©2026 The Guild of Property Professionals. All rights reserved. Terms and Conditions | Privacy Policy | Cookie Policy | Complaints Policy | Members Login
The Guild of Property Professionals Trading Address: 121 Park Lane, London W1K 7AG. GPEA Limited. Registered in England & Wales.  Company No: 02819824.  Registered Office Address: 2 St. Stephen's Court, St. Stephen's Road, Bournemouth, Dorset, England, BH2 6LA.  VAT Registration No: 576 8795 61
Book a Property Valuation Update Cookies Preferences