Wall Road, Gwinear, Hayle, Cornwall, TR27 5HA

Guide Price
£430,000
SSTC
This property listing is now SSTC

5 Bedroom Semi-Detached House for sale in Cornwall

2 5 3
  • FIVE BEDROOM SEMI DETACHED HOUSE
  • DOUBLE GARAGE WITH DRIVEWAY PARKING FOR MULTIPLE VEHICLES
  • BRIGHT AND WELCOMING LIVING ROOM
  • LARGE KITCHEN/DINING ROOM PERFECT FOR ENTERTAINING
  • UTILITY ROOM AND GROUND FLOOR CLOAKROOM/W.C.
  • TWO ENSUITE DOUBLE BEDROOMS AND ONE DOUBLE WITH DRESSING AREA
  • ADDITIONAL DOUBLE BEDROOM, SINGLE BEDROOM AND FAMILY BATHROOM
  • GENEROUS REAR GARDEN LAID TO LAWN WITH PAVED AREA AND GREENHOUSE
  • EPC = C * COUNCIL TAX BAND = C
  • APPROXIMATELY 159 SQUARE METRES

Council tax band: C.

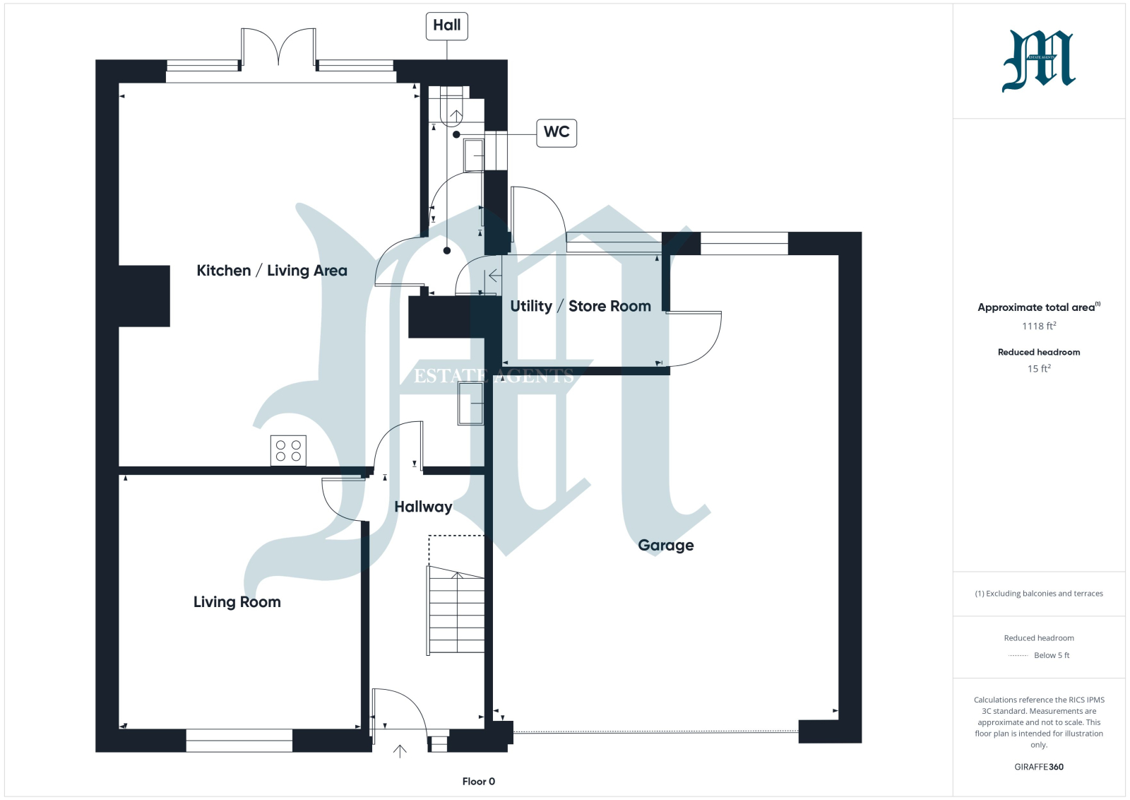
A substantial and modern five-bedroom semi-detached home, offering generous living space arranged over two floors together with a double garage and a large rear garden. This attractive property is ideally suited to family living, with versatile accommodation designed for comfort and convenience. On the ground floor, the welcoming entrance hall gives access to a bright living room, a spacious kitchen/dining room perfect for both everyday use and entertaining, a practical utility room, and a cloakroom/W.C. The first floor opens onto a large landing area, leading to five bedrooms. Two of the double bedrooms benefit from ensuite shower rooms, one further double features a dressing area, in addition to another double bedroom, a single bedroom, and a well-appointed family bathroom. Externally, the property is approached via a driveway providing parking for multiple vehicles, along with access to the double garage. To the rear, a generous garden offers outdoor space, mainly laid to lawn with mature planting, a paved seating area, and a greenhouse, with side access linking the front and rear. We would highly recommend an early appointment to view.



Property additional info

DOUBLE GLAZED DOOR AND SIZE PANEL TO:

ENTRANCE HALL: 13' 10" x 5' 10" (4.22m x 1.78m)
Stairs rising with storage area under, wooden flooring, radiator.

LIVING ROOM: 13' 10" x 13' 4" (4.22m x 4.06m)
Double glazed window to the front, wooden flooring, radiator, sunken spotlights.

KITCHEN / DINING ROOM: 20' 9" x 16' 0" (6.32m x 4.88m)
Range of base and wall mounted units, built in electric oven, gas hob and extractor fan over, stainless steel single bowl sink unit with mixer tap and drainer, space and plumbing for dishwasher, space for freestanding fridge/freezer, central island with cupboards to one side and breakfast bar to the other, double glazed patio doors and windows to the rear, radiator. Door to:

INNER HALL:
Tiled flooring.

CLOAKROOM:
With tiled flooring, low level w.c., wash hand basin, double glazed window to the side.

UTILITY / STORE ROOM: 8' 7" x 6' 4" (2.62m x 1.93m)
Double glazed windows and door to the rear, door to:

DOUBLE GARAGE: 18' 7" x 18' 3" plus storage area (5.66m x 5.56m)
Electric up and over garage door, power and light, wall mounted gas boiler, hot water cylinder, double glazedw indow to the rear, plumbing for washing machine, inspection pit.

FIRST FLOOR LANDING:
Built in storage cupboard, radiator, 2 loft hatches.

BEDROOM ONE: 13' 9" x 12' 7" (4.19m x 3.84m)
Double glazed window to the rear, radiator. Door to:

ENSUITE SHOWER ROOM: 7' 9" x 4' 0" (2.36m x 1.22m)
Walk in shower cubicle with glazed screen, pedestal wash hand basin, low level w.c., double glazed window to one side, extractor fan.

BEDROOM TWO: 12' 4" x 11' 1" (3.76m x 3.38m)
Two double glazed windows to the front, radiator. Partition with opening to wardrobe area with access to the loft. Door to:

ENSUITE SHOWER ROOM: 5' 3" x 4' 10" (1.60m x 1.47m)
Tiled walls and floor, corner shower cubicle, low level w.c., pedestal wash hand basin, heated towel rail, extractor fan.

BEDROOM THREE: 12' 4" x 10' 5" maximum (3.76m x 3.17m)
Opening to:

DRESSING ROOM: 11' 7" x 5' 10" (3.53m x 1.78m)
Range of built in wardrobes, double glazed window to the rear, access to the loft, radiator.

BEDROOM FOUR: 11' 3" x 9' 11" (3.43m x 3.02m)
Double glazed window to the front, radiator.

BEDROOM FIVE: 9' 5" x 8' 4" maximum (2.87m x 2.54m)
Double glazed window to the front, radiator.

FAMILY BATHROOM: 11' 6" x 7' 6" (3.51m x 2.29m)
Freestanding bath with waterfall tap and shower attachment, walk in shower with glazed screen, wash hand basin with drawers under, low level w.c., radiator, extractor fan, double glazed window to the rear, fully tiled walls and floor.

OUTSIDE:
To the front, the property benefits from a driveway providing ample parking for multiple vehicles and direct access to the double garage, with side access leading through to the rear garden. The generous rear garden is mainly laid to lawn, complemented by paved patio areas and a greenhouse, offering an excellent space for outdoor living and entertaining.

SERVICES:
Mains water, gas, electricity and drainage.

AGENTS NOTE:
The property is constructed of block under a concrete tiled roof. We understand from Openreach.com that Superfast Fibre Broadband (FTTC) should be available to the property. We checked the phone signal with EE which was good.

DIRECTIONAL NOTE:
Via What3Words: ///bombshell.computers.rescue

Important Information

  • This is a Freehold property.

Property Ref: 111122_M40

Share:

Similar Properties

Foxes Lane, Mousehole, TR19 6QQ

2 Bedroom Detached House | Guide Price £430,000

Lovely sea views over Mousehole Village and beyond from this spacious two bedroom detached bungalow with large loft area...

Penrose Terrace, Penzance, TR18

2 Bedroom Apartment | Guide Price £425,000

Petrellen Court is an outstanding development of two bedroom apartments together with a new build townhouse which incorp...

Gurnards Head, Zennor, TR26 3DE

4 Bedroom Detached House | Guide Price £425,000

A detached four bedroom former farmhouse offered for sale with no onward chain and situated in an Area Of Outstanding Na...

Marcwheal Mews, Mousehole, TR19 6QP

3 Bedroom Detached House | £434,990

Lovely sea views over Mount's Bay, Mousehole village and beyond from this well presented three bedroom detached, modern...

Townshend, Hayle, Cornwall, TR27 6AQ

4 Bedroom Detached House | Guide Price £435,000

Situated in the heart of Townshend is this well proportionedthree/four bedroom detached house with gardens and parking....

Rosparvah Gardens, Heamoor, TR18 3EA

3 Bedroom Semi-Detached House | Guide Price £435,000

A chance to acquire a spacious three bedroom semi detached family home which is offered for sale in good decorative orde...

Marshalls Estate Agents (Penzance)

6 The Greenmarket, Penzance, Cornwall, TR18 2SG

01736 360203

How much is your home worth?

Use our short form to request a valuation of your property.

Request a Valuation

Mortgage Calculator

Amount Borrowed: £
Total Amount Repayable: £
Total Monthly Payment: £
©2025 The Guild of Property Professionals. All rights reserved. Terms and Conditions | Privacy Policy | Cookie Policy | Complaints Policy | Members Login
The Guild of Property Professionals Trading Address: 121 Park Lane, London W1K 7AG. GPEA Limited. Registered in England & Wales.  Company No: 02819824.  Registered Office Address: 2 St. Stephen's Court, St. Stephen's Road, Bournemouth, Dorset, England, BH2 6LA.  VAT Registration No: 576 8795 61
Book a Property Valuation Update Cookies Preferences