Lime Tree Avenue, Crewe

£170,000
SSTC
This property listing is now SSTC

3 Bedroom Terraced House for sale in Crewe

3

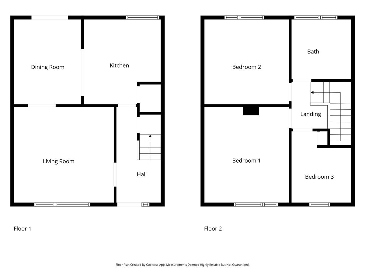
Welcome to this beautifully presented mid-terrace home, perfectly situated in a popular residential location. As you enter, you'll be greeted by a spacious entrance hall that flows seamlessly into the expansive living area, providing a warm and inviting atmosphere for family and friends. The open-plan dining room and kitchen area are ideal for modern living, featuring stylish French doors that effortlessly connect the indoor space to the lovely garden, perfect for entertaining and enjoying outdoor time.

Step outside to the well-maintained garden, which includes outbuildings equipped with a home office, WC, and utility room-offering a versatile space that can adapt to your lifestyle.

Upstairs, you'll find two good sized double bedrooms, alongside a well-proportioned third bedroom, making this home ideal for families or those in need of a guest room or home office. The modern family bathroom is spacious and functional, catering to all your needs.

This property combines comfort, convenience, and charm in a vibrant location. Don't miss out-schedule your viewing today!

Council Tax Band: A (Cheshire East)
Tenure: Freehold
Parking options: Driveway
Garden details: Rear Garden
Electricity supply: Mains
Heating: Gas Mains
Water supply: Mains
Broadband: FTTC


Access
Approached over a gravel driveway leading to a covered porch and a uPvc double glazed frosted panelled entrance door giving access into the reception hall.

Reception Hall w: 1.84m x l: 3.96m (w: 6' x l: 13' )
Really nice sized reception hall, having a double panelled radiator, under stair storage cupboard, stairs rising to the first floor, door to the kitchen and door leading into the sitting room.

Sitting Room w: 4.13m x l: 3.97m (w: 13' 7" x l: 13' )
Having laminate flooring, uPvc double glazed panelled window to the front elevation, double panelled radiator, recessed alcove, opening into the dining area.

Dining room w: 2.78m x l: 3.52m (w: 9' 1" x l: 11' 7")
Having double glazed panelled French doors leading out to the rear garden, laminate flooring continued through from the lounge, two double panelled radiators , opening into the kitchen area.

Kitchen w: 3.19m x l: 3.52m (w: 10' 6" x l: 11' 7")
Modern fitted kitchen with a uPvc double glazed panelled window to the rear elevation, tiled flooring. The kitchen is fitted with a range of wall, base and drawer units with granite effect work surfaces over a single drainer resin sink unit with mixer tap, built in four ring electric induction hob with extractor hood over and electric double oven below, wall mounted central heating boiler, space for fridge, space for washer, built in breakfast bar.

FIRST FLOOR:


Landing w: 1.49m x l: 1.94m (w: 4' 11" x l: 6' 4")
Turn flight stair case leading to the landing, having loft access point, doors leading to all further rooms.

Bedroom 1 w: 3.49m x l: 3.97m (w: 11' 5" x l: 13' )
Good sized double room with a uPvc double glazed panelled window to the front elevation, double panelled radiator.

Bedroom 2 w: 3.5m x l: 3.52m (w: 11' 6" x l: 11' 7")
A further double bedroom with uPvc double glazed panelled window to the rear elevation, double panelled radiator.

Bedroom 3 w: 2.47m x l: 2.96m (w: 8' 1" x l: 9' 9")
Really good sized third bedroom having a uPvc double glazed panelled window to the front elevation, double panelled radiator, built in storage cupboard.

Bathroom w: 2.47m x l: 2.47m (w: 8' 1" x l: 8' 1")
Modern family bathroom with a uPvc double glazed frosted panelled window to the rear elevation, double panelled radiator. The bathroom is fitted with a four piece suite comprising of a push button low level WC, double ended panelled bath with mixer tap, pedestal wash hand basin with mixer tap, walk in shower cubicle with glazed sliding doors housing a mixer shower with a rain fall shower head and additional hand held shower attachment over, tiled flooring, complimentary wall tiling.

Externally
To the front of the property there is a double width gravel driveway providing off road parking.

To the rear of the property there is a generous lawned garden with fenced boundaries, large paved patio area allowing ample space for garden furniture. To the rear of the garden there is a summerhouse and additional garden shed and a further paved patio.

The property also benefits from outbuildings divided into three rooms which provide a useful utility room, WC, and home office with power and lighting.

Energy Performance
The current energy rating is 40, with a potential of 75.

Viewings
Viewings are strictly by appointment only, please call or email the office. Thank you.

Looking to sell?
If you are thinking of selling please call or email the office to arrange a free market appraisal. Thank you.

Important Information

  • This is a Freehold property.

Property Ref: 632445_RS0692

Share:

Similar Properties

Moreton Road, Crewe

2 Bedroom Semi-Detached House | Offers in region of £170,000

A spacious two double bedroom semi detached home situated in a popular residential location and offered for sale with no...

Rochester Crescent, Crewe

2 Bedroom Semi-Detached House | Offers Over £170,000

UNEXPECTEDLY BACK ON THE MARKET AND OFFERED FOR SALE WITH NO ONWARD CHAIN. Two bedroomed semi detached home in need of r...

North Street, Crewe

2 Bedroom Semi-Detached House | Offers Over £165,000

NO CHAIN,Introducing this stunning and spacious semi detached property, beautifully presented and fully modernised to th...

Mirion Street, Crewe

3 Bedroom Semi-Detached House | £175,000

We are thrilled to offer for sale what is going to be a stunning 3 bedroomed, semi detached family home currently underg...

London Road, Sandbach

2 Bedroom Terraced House | £175,000

We are pleased to offer for sale this charming 2 double bedroomed mid terraced cottage with delightful enclosed cottage...

Booth Avenue, Sandbach

2 Bedroom Semi-Detached House | Offers Over £175,000

A fabulous opportunity for first time buyers or investors. 2 bedroom semi detached home located in a highly popular resi...

Wheatcroft & Lloyd (Sandbach)

Sandbach, Cheshire, CW11 1AL

01270 382283

How much is your home worth?

Use our short form to request a valuation of your property.

Request a Valuation

Mortgage Calculator

Amount Borrowed: £
Total Amount Repayable: £
Total Monthly Payment: £
©2025 The Guild of Property Professionals. All rights reserved. Terms and Conditions | Privacy Policy | Cookie Policy | Complaints Policy | Members Login
The Guild of Property Professionals Trading Address: 121 Park Lane, London W1K 7AG. GPEA Limited. Registered in England & Wales.  Company No: 02819824.  Registered Office Address: 2 St. Stephen's Court, St. Stephen's Road, Bournemouth, Dorset, England, BH2 6LA.  VAT Registration No: 576 8795 61
Book a Property Valuation Update Cookies Preferences