Cartwright Road Haslington

Offers in region of
£210,000
SSTC
This property listing is now SSTC

2 Bedroom Semi-Detached House for sale in Crewe

2
  • Mature semi detached family home
  • Popular location
  • Two Double Bedrooms
  • Large Rear Garden
  • No Chain
  • Viewings Highly Recommended

Welcome to this charming semi-detached property offered for sale with no upward chain, nestled in the sought-after village of Haslington. Boasting a spacious interior with two double bedrooms, this home is perfect for those who appreciate a comfortable living space.

Outside, the property features a generous garden, ideal for those with green fingers or anyone looking to create a tranquil outdoor oasis. The driveway provides an ample parking space making day-to-day life convenient for busy homeowners.

Located in Haslington, residents will enjoy the benefits of village life while still having easy access to nearby amenities. Don't miss the chance to view this lovely property for yourself. Contact us today to arrange a viewing and make this house your new home.

Council Tax Band: B (Cheshire East)
Tenure: Freehold
Parking options: Driveway, Garage
Garden details: Rear Garden
Electricity supply: Mains
Water supply: Mains
Sewerage: Mains
Broadband: FTTC


Access
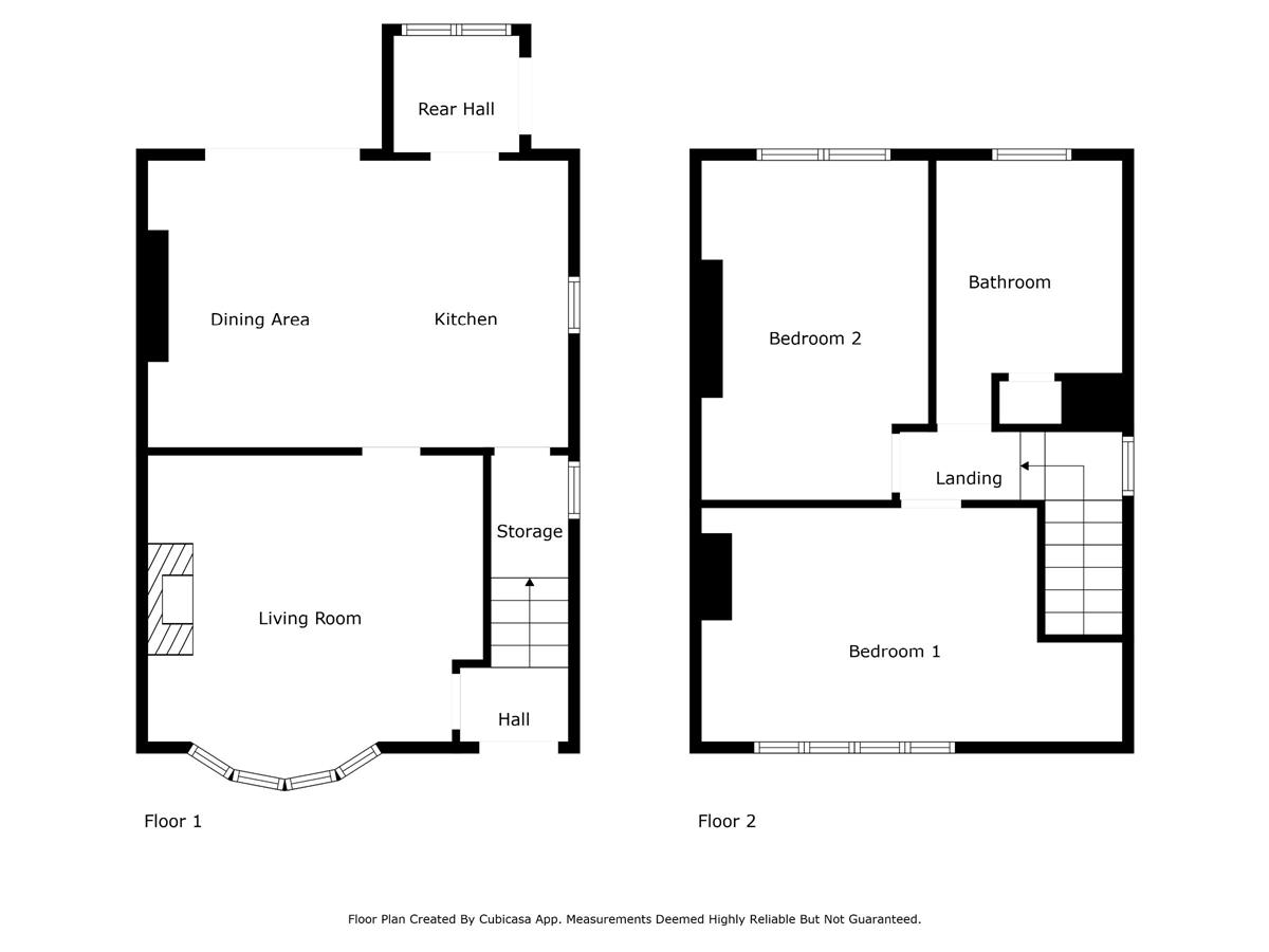
Approached over a paved driveway leading to the double glazed panelled composite entrance door giving access into the entrance hall.

Entrance Hall w: 1.47m x l: 1m (w: 4' 10" x l: 3' 3")
Having a single radiator, stairs rising to the first floor, wood block flooring, oak panelled door leading into the lounge.

Living room w: 4.55m x l: 4.39m (w: 14' 11" x l: 14' 5")
Really spacious living room with a uPvc double glazed panelled bow window to the front elevation, double panelled radiator, wood block flooring, ornate fire surround, oak panelled door leading through to the dining kitchen.

Dining kitchen w: 5.7m x l: 3.9m (w: 18' 8" x l: 12' 10")
Lovely sized dining kitchen having a uPvc double glazed panelled window to the side elevation. The kitchen is fitted with a range of wall, base and drawer units with work surfaces over incorporating a porcelain sink unit with mixer tap, quarry tiled flooring, space for cooker, space for fridge freezer, a central island providing additional storage space with a built in breakfast bar. To the dining area there is ample space for table and chairs, double panelled radiator, uPvc double glazed panelled sliding patio doors leading to the rear out onto the rear garden, inset spot lighting, glazed oak panelled door leading to the rear hallway, glazed oak panelled door leading into the under stair storage room with space and plumbing for a washer.

Rear hall w: 1.71m x l: 1.59m (w: 5' 7" x l: 5' 3")
Having quarry tiled flooring, uPvc double glazed panelled windows to the rear elevation, uPvc double glazed panelled split door leading to the side elevation, wall mounted central heating boiler concealed within a cupboard.

FIRST FLOOR:


Landing
Turn flight stair case to the landing with a uPvc double glazed panelled window to the side elevation, oak panelled doors leading to all rooms, loft access point.

Bedroom 1 w: 5.71m x l: 3.18m (w: 18' 9" x l: 10' 5")
Large double room with uPvc double glazed panelled window to the front elevation, double panelled radiator.

Bedroom 2 w: 3.07m x l: 4.61m (w: 10' 1" x l: 15' 1")
A further double room with uPvc double glazed panelled window to the rear elevation, double panelled radiator.

Bathroom w: 2.52m x l: 3.58m (w: 8' 3" x l: 11' 9")
Really good sized family bathroom having a uPvc double glazed frosted panelled window to the rear elevation, double panelled radiator. The bathroom is fitted with a three piece suite comprising of a pedestal wash hand basin with mixer tap and complimentary splash back tiling, push button low level WC, panelled bath with mixer tap, electric shower and glazed shower screen over, heated towel rail, storage cupboard with louvered door.

Externally
To the front of the property there is a paved driveway providing off road parking accessed through wrought iron double gates, gravel garden with borders housing a variety of shrubs and plants.

To the rear of the property there is a generous lawn garden with fenced boundaries and borders housing a variety of trees, shrubs and plants, patio area allowing space for garden furniture , detached garage.

Energy Performance
The current rating is 55, with a potential of 84.

Viewings
Viewings are strictly by appointment only, please call or email the office. Thank you.

Looking to sell?
If you are thinking of selling please call or email the office to arrange a free market appraisal. Thank you.

Important Information

  • This is a Freehold property.

Property Ref: 632445_RS0641

Share:

Similar Properties

Merrills Avenue, Crewe

2 Bedroom Semi-Detached Bungalow | Offers Over £210,000

Stunning, fully modernised, two bedroom, semi detached true Bungalow, designed with a modern contemporary feel throughou...

The Hague, Sandbach

3 Bedroom Semi-Detached House | Offers in region of £200,000

Situated in the highly sought after Sandbach Heath and requiring modernisation this 3 bedroom, mature semi-detached prop...

Gresty Lane, Crewe

2 Bedroom Semi-Detached House | Offers Over £200,000

A spacious two bedroom semi detached home with the added benefit of a versatile loft room. Viewings highly recommended.

Birchmuir Close,, Crewe

3 Bedroom Detached House | £220,000

Situated in a popular residential location within a cul-de-sac is this three bedroom detached home with gardens and driv...

Douglas Forrest Close, Crewe

3 Bedroom Townhouse | Guide Price £220,000

UNEXPECTEDLY BACK ON THE MARKET.Situated on a popular residential development and nestled within a small cul-de-sac is t...

5a Queens Park Drive, Crewe

3 Bedroom Detached Bungalow | £225,000

Offered for sale with no upward chain is this mature detached true bungalow situated in a sought after location opposite...

Wheatcroft & Lloyd (Sandbach)

Sandbach, Cheshire, CW11 1AL

01270 382283

How much is your home worth?

Use our short form to request a valuation of your property.

Request a Valuation

Mortgage Calculator

Amount Borrowed: £
Total Amount Repayable: £
Total Monthly Payment: £
©2025 The Guild of Property Professionals. All rights reserved. Terms and Conditions | Privacy Policy | Cookie Policy | Complaints Policy | Members Login
The Guild of Property Professionals Trading Address: 121 Park Lane, London W1K 7AG. GPEA Limited. Registered in England & Wales.  Company No: 02819824.  Registered Office Address: 2 St. Stephen's Court, St. Stephen's Road, Bournemouth, Dorset, England, BH2 6LA.  VAT Registration No: 576 8795 61
Book a Property Valuation Update Cookies Preferences