5a Queens Park Drive, Crewe

£225,000

3 Bedroom Detached Bungalow for sale in Crewe

3

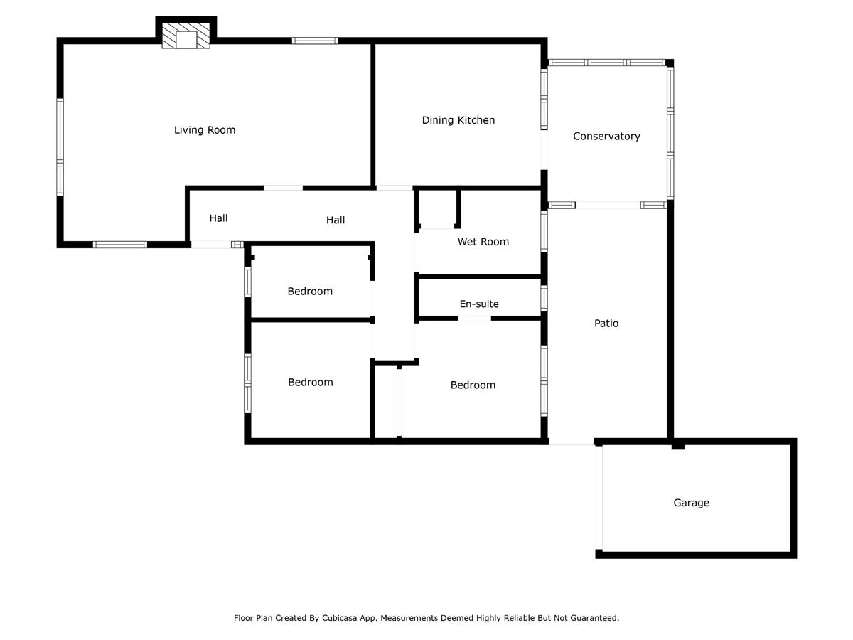
Offered for sale with no upward chain is this mature detached true bungalow situated in a sought after location opposite Queens park having the benefit of driveway and a garage. Comprising in brief, reception hall, lounge, dining kitchen, conservatory, three bedrooms and a wet room. Externally there is garden to the rear and a block paved driveway.

Council Tax Band: C (Cheshire East)
Tenure: Freehold
Parking options: Driveway, Garage
Garden details: Rear Garden
Electricity supply: Mains
Heating: Gas Mains
Water supply: Mains
Sewerage: Mains
Broadband: ADSL


Access
Approached over a block paved driveway leading to the covered porch and uPvc double glazed panelled entrance door giving access into the reception hall.

Reception Hall
Having a single panelled radiator, doors to all further rooms, loft access point.

Lounge w: 7.04m x l: 4.51m (w: 23' 1" x l: 14' 10")
L-Shaped lounge with uPvc double glazed panelled windows to the front and side elevations, feature wooden fire surround with decorative slips and hearth housing a coal effect living flame gas fire, two double panelled radiators, two wall light points.

Dining kitchen w: 3.8m x l: 3.24m (w: 12' 6" x l: 10' 8")
The kitchen is fitted with a range of wall, base and drawer units with granite effect roll top work surfaces over incorporating a resin single drainer sink unit with mixer tap and complimentary splash back tiling, built in four ring electric hob with extractor hood over and electric oven below, integrated fridge, integrated freezer, space for washer, space for table and chairs, double panelled radiator, wall mounted central heating boiler, uPvc double glazed panelled window to the rear elevation. uPvc double glazed panelled door leading into the conservatory.

Conservatory w: 2.74m x l: 3.1m (w: 9' x l: 10' 2")
Dwarf walled conservatory with uPvc double glazed windows to the side and rear elevations, uPvc double glazed panelled doors leading out to the rear garden, tiled flooring.

Bedroom 1 w: 3.2m x l: 2.7m (w: 10' 6" x l: 8' 10")
Good sized double room having built in double wardrobe, single radiator, uPvc double glazed panelled window to the rear elevation, single radiator, door into the en-suite.

En-suite w: 2.8m x l: 0.85m (w: 9' 2" x l: 2' 9")
En-suite comprising of a three piece suite with low level WC, wall mounted wash hand basin, walk in shower cubicle with glazed pivot doors housing an electric shower, uPvc double glazed panelled window to the rear, single radiator.

Bedroom 2 w: 2.73m x l: 2.66m (w: 8' 11" x l: 8' 9")
Having a single radiator, uPvc double glazed panelled window to the front elevation, range of built in storage cupboards.

Bedroom 3 w: 2.73m x l: 1.33m (w: 8' 11" x l: 4' 4")
Having a single radiator, uPvc double glazed window to the front elevation, range of built in storage cupboards with sliding doors.

Wet Room w: 2.8m x l: 1.94m (w: 9' 2" x l: 6' 4")
Good sized wet room has a uPvc double glazed frosted panelled window to the rear elevation, single radiator, two piece suite comprising of a low level WC, pedestal wash hand basin, wall mounted electric shower, built in storage cupboard.

Externally
To the rear of the property there is an enclosed block paved low maintenance garden with fenced and walled boundaries, raised stone paved patio area, outside tap, access gate leading to the garage and driveway.

To the front of the property there is a block paved driveway providing ample off road parking extending along the side of the property leading to the garage.

Garage w: 4.3m x l: 2.45m (w: 14' 1" x l: 8' )
Having an up and over door to the front.

Energy Performance
The current rating is 69, with a potential of 85.

Viewings
Viewings are strictly by appointment only, please call or email the office. Thank you.

Looking to sell?
If you are thinking of selling please call or email the office to arrange a free market appraisal. Thank you.

Important Information

  • This is a Freehold property.

Property Ref: 632445_RS0560

Share:

Similar Properties

Douglas Forrest Close, Crewe

3 Bedroom Townhouse | Guide Price £220,000

UNEXPECTEDLY BACK ON THE MARKET.Situated on a popular residential development and nestled within a small cul-de-sac is t...

Birchmuir Close,, Crewe

3 Bedroom Detached House | £220,000

Situated in a popular residential location within a cul-de-sac is this three bedroom detached home with gardens and driv...

Cartwright Road Haslington

2 Bedroom Semi-Detached House | Offers in region of £210,000

A spacious semi detached home in the heart of the village of Haslington, offered for sale with no upward chain.

Coppice Road, Willaston, Nantwich

3 Bedroom Semi-Detached Bungalow | £230,000

UNEXPECTEDLY BACK ON THE MARKET. Situated in the popular and sought after village of Willaston and offered for sale with...

Flixton Drive, Crewe

3 Bedroom Semi-Detached House | Offers in region of £230,000

A mature semi detached family home situated in a popular residential location, offered for sale with no upward chain.

Roseberry Way, Haslington, Crewe

3 Bedroom Semi-Detached House | Offers Over £230,000

A beautifully presented 3 bedroom semi detached home in the sought after village of Haslington having been lovingly upda...

Wheatcroft & Lloyd (Sandbach)

Sandbach, Cheshire, CW11 1AL

01270 382283

How much is your home worth?

Use our short form to request a valuation of your property.

Request a Valuation

Mortgage Calculator

Amount Borrowed: £
Total Amount Repayable: £
Total Monthly Payment: £
©2025 The Guild of Property Professionals. All rights reserved. Terms and Conditions | Privacy Policy | Cookie Policy | Complaints Policy | Members Login
The Guild of Property Professionals Trading Address: 121 Park Lane, London W1K 7AG. GPEA Limited. Registered in England & Wales.  Company No: 02819824.  Registered Office Address: 2 St. Stephen's Court, St. Stephen's Road, Bournemouth, Dorset, England, BH2 6LA.  VAT Registration No: 576 8795 61
Book a Property Valuation Update Cookies Preferences