Ashton Gardens, Eastleigh

Offers in excess of
£425,000
SSTC
This property listing is now SSTC

4 Bedroom Detached House for sale in Eastleigh

4 2

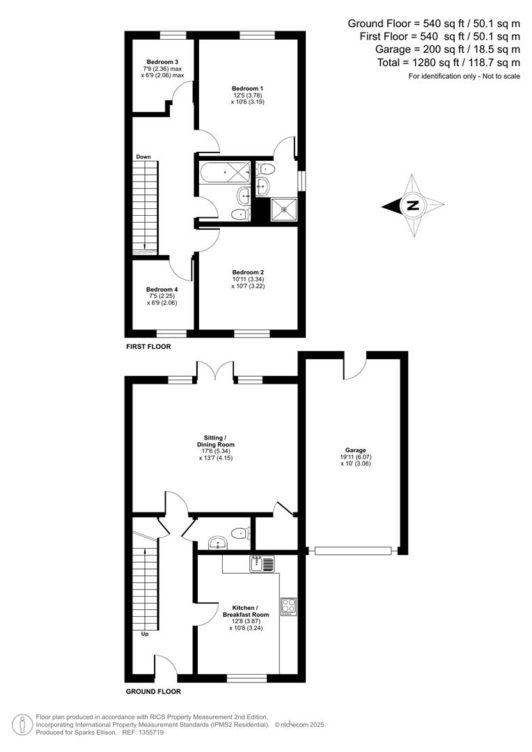
Built in 2016, this delightful four-bedroom detached house presents an excellent opportunity for families and individuals alike. The property boasts a prime location, conveniently situated near a variety of shops and amenities in the town centre of Eastleigh, ensuring that all your daily needs are just a stone's throw away. The ground floor benefits a spacious kitchen as well as a large sitting/dining room which opens onto the rear garden. The first floor features four well proportioned bedrooms with the master benefitting from an en-suite. Outside, you'll find a sizable garage and parking space directly in front and the rear garden includes a brilliant outbuilding presenting a great space to entertain with an option for added storage or a gym space.

Accomadation -

Ground Floor -

Hallway: - stairs to first floor and under stair cupboard

Sitting/Dining Room: - 17'6" x 13'7" (5.34m x 4.15m) Large storage cupboard and French doors onto rear garden.

Kitchen/Breakfast Room: - 12'8" x 10'8" (3.87m x 3.24m) Range of units including electric oven, gas hob with extractor hood over, sink and space for washing machine, dishwasher and fridge/freezer.

Cloakroom: - White suite comprising wash basin and WC.

First Floor -

Bedroom 1 - 12'5" x 10'6" (3.78m x 3.19m)

En-Suite - White suite comprising shower cubicle with folding door, WC and wash basin.

Bedroom 2 - 10'11" x 10'7" (3.34m x 3.22m)

Bedroom 3 - 7'9" x 6'9" (2.36m x 2.06m)

Bedroom 4 - 7'5" x 6'9" (2.25m x 2.06m)

Bathroom: - Suite comprising bath with shower over, wash basin, WC.

Garage - 19'11" x 10' (6.07m x 3.06m)

Rear Garden - Patio area with area of artificial grass.

Outbuilding - Electricity and space for gym or utility area.

Other Information -

Tenure: - Freehold

Approximate Age: - 2016

Approximate Area: - 1280sqft/118.7sqm (Including garage)

Sellers Position: - Found property to purchase

Heating: - Gas central heating

Windows: - UPVC double glazed windows

Loft Space: - Boarded

Infant/Junior School: - Shakespeare Infant/Junior School

Secondary School: - Crestwood Community School

Council Tax: - Band D

Local Council: - Eastleigh Borough Council - 02380 688000

Agents Note: - If you have an offer accepted on a property we will need to, by law, conduct Anti Money Laundering Checks. There is a charge of £60 including vat for these checks regardless of the number of buyers involved.

Property Ref: 6224678_34191373

Share:

Similar Properties

Merrieleas Drive, Chandler's Ford

3 Bedroom Semi-Detached House | £425,000

An exceptional 3 bedroom semi-detached home presented to a very high standard throughout, extended to the ground floor t...

Pantheon Road, Scantabout, Chandler's Ford

3 Bedroom Detached House | £425,000

A well presented three bedroom family home situated on the popular Scantabout development and within walking distance an...

Pine Crescent, Hiltingbury, Chandlers Ford

4 Bedroom Terraced House | Offers in excess of £425,000

A particularly spacious four/five bedroom three storey home situated in a quiet crescent within the heart of Hiltingbury...

Tomkyns Close, Knightwood Park, Chandler's Ford

3 Bedroom House | £435,000

A delightful three-bedroom detached home nestled in a quiet cul-de-sac location in the ever-popular Knightwood Park. On...

Chestnut Rise, Chandler's Ford

3 Bedroom Semi-Detached House | £440,000

Nestled in the corner of this idyllic Georgian style cul de sac location, this immaculate three bedroom semi detached ho...

Brownhill Road, Chandler's Ford

3 Bedroom Semi-Detached House | Offers in excess of £450,000

A stunning three bedroom semi-detached house presented in excellent condition throughout and pleasantly situated in an e...

Sparks Ellison (Chandler's Ford)

Chandler's Ford, Hampshire, SO53 2GJ

02380 255333

How much is your home worth?

Use our short form to request a valuation of your property.

Request a Valuation

Mortgage Calculator

Amount Borrowed: £
Total Amount Repayable: £
Total Monthly Payment: £
©2025 The Guild of Property Professionals. All rights reserved. Terms and Conditions | Privacy Policy | Cookie Policy | Complaints Policy | Members Login
The Guild of Property Professionals Trading Address: 121 Park Lane, London W1K 7AG. GPEA Limited. Registered in England & Wales.  Company No: 02819824.  Registered Office Address: 2 St. Stephen's Court, St. Stephen's Road, Bournemouth, Dorset, England, BH2 6LA.  VAT Registration No: 576 8795 61
Book a Property Valuation Update Cookies Preferences