Hero Walk, Rochester, ME1

£200,000
Under Offer
This property listing is now Under Offer

3 Bedroom Terraced House for sale in Rochester

1 3 1
  • Three Bedrooms
  • Refurbishment Project
  • Rochester
  • No Chain
  • Mid Terrace House
  • Front & Rear Garden
  • Investment Opportunity
  • Garage Requiring Refurbishment

A rare opportunity to purchase a house in Rochester requiring significant refurbishment but when done would make a lovely family home. The house is being offered with no chain.

At the front of the property is a porch and an area off of here for potential office/storage. The lounge is to the front aspect. There is a kitchen/breakfast room along with a lean to style conservatory - offering the footprint for an updated version to be created. There is a handy downstairs cloakroom. Upstairs are three good sized bedrooms and bathroom. There is a compact rear garden and a garage space. Unique chance for future investment opportunity.

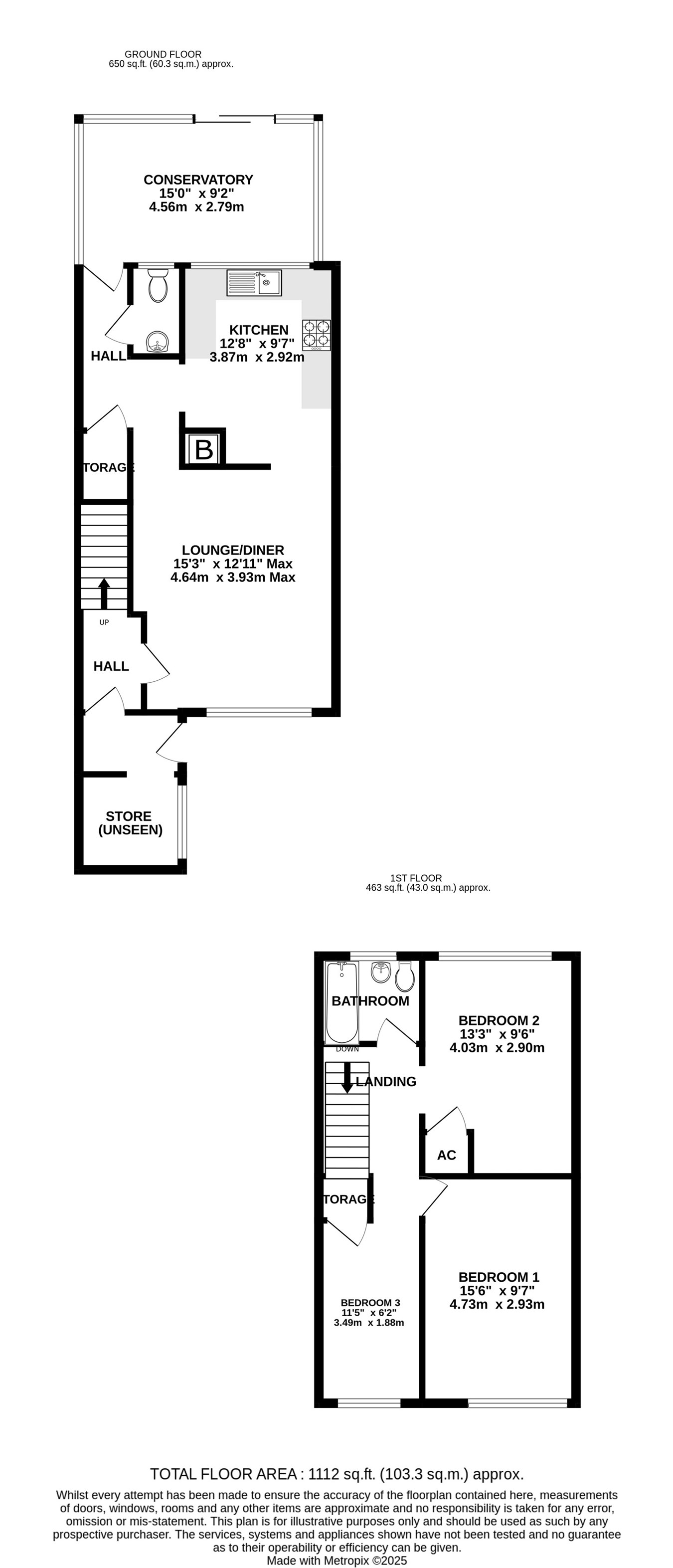
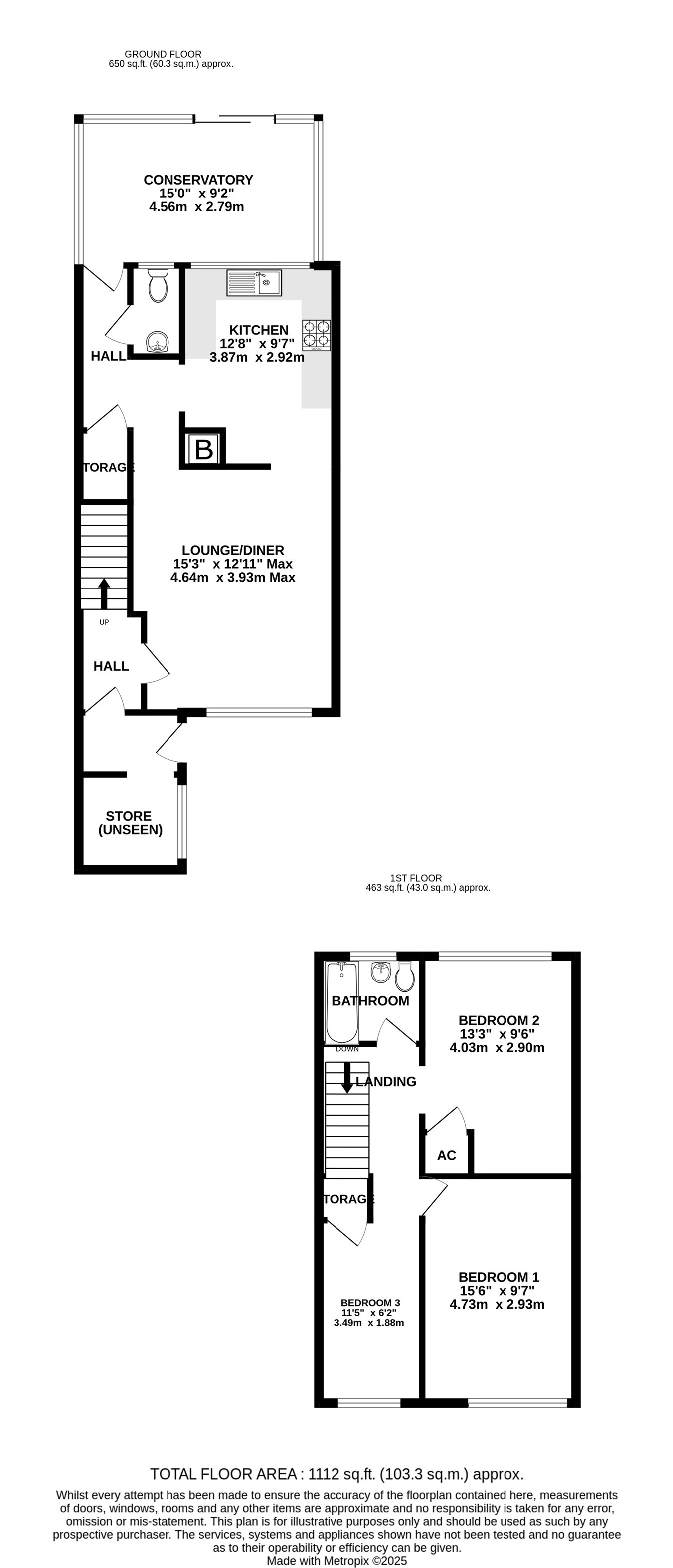
Ground Floor


Hallway


Lounge/Diner
15' 3" x 12' 11" (4.65m x 3.94m)

Kitchen
12' 8" x 9' 7" (3.86m x 2.92m)

Conservatory
15' 0" x 9' 2" (4.57m x 2.79m)

WC


First Floor


Bedroom 1
15' 6" x 9' 7" (4.72m x 2.92m)

Bedroom 2
13' 3" x 9' 6" (4.04m x 2.90m)

Bedroom 3
11' 5" x 6' 2" (3.48m x 1.88m)

Bathroom


Important Information

  • This is a Freehold property.

Property Ref: 5093134_29735734

Share:

Similar Properties

Diana Road, Chatham, ME4

1 Bedroom Apartment | Offers Over £170,000

Situated on a modern development and within walking distance to Chatham Town Centre, this ground floor apartment is in e...

Ward View, Chatham, ME5

1 Bedroom Apartment | Offers Over £160,000

This modern ground floor apartment is located in a popular road with amazing outlook to the front. Convenient for local...

Chatham Grove, Chatham, ME4

1 Bedroom Maisonette | Offers Over £120,000

Being sold with no chain. Rarely available is this maisonette of a coach house style. Situated in a popular location for...

Charter Street, Chatham, ME4

2 Bedroom Terraced House | £220,000

An opportunity for the first time buyer or investor is this two double bedroom terraced home within walking distance to...

Bright Road, Chatham, ME4

3 Bedroom Terraced House | £220,000

Being offered with no onward chain is this opportunity for the investor or first time buyer. On entering the first floor...

Farley Close, Lordswood, Chatham, ME5

2 Bedroom Ground Maisonette | Offers in excess of £240,000

An ideal home for the first time buyer or investor to purchase this two bedroom ground floor maisonette. The property ha...

Greyfox Sales & Lettings (Walderslade)

Walderslade Village Centre, Walderslade, Walderslade, Kent, ME5 9LR

01634 672227

How much is your home worth?

Use our short form to request a valuation of your property.

Request a Valuation

Mortgage Calculator

Amount Borrowed: £
Total Amount Repayable: £
Total Monthly Payment: £
©2025 The Guild of Property Professionals. All rights reserved. Terms and Conditions | Privacy Policy | Cookie Policy | Complaints Policy | Members Login
The Guild of Property Professionals Trading Address: 121 Park Lane, London W1K 7AG. GPEA Limited. Registered in England & Wales.  Company No: 02819824.  Registered Office Address: 2 St. Stephen's Court, St. Stephen's Road, Bournemouth, Dorset, England, BH2 6LA.  VAT Registration No: 576 8795 61
Book a Property Valuation Update Cookies Preferences