Tay Close, Lordswood , ME5

£210,000
SSTC
This property listing is now SSTC

1 Bedroom Semi-Detached House for sale in Lordswood

1 1 1
  • No Forward Chain
  • One Bedroom House
  • Ideal for First Time Buyers or Investors
  • Allocated Parking
  • Quiet Cul-De-Sac Position
  • Lounge/Diner
  • Attached Rear Garden

Being offered with no forward chain and presents an excellent opportunity for the first time buyer or those looking to downsize. It has the benefit of a good size attached garden and off road parking space.

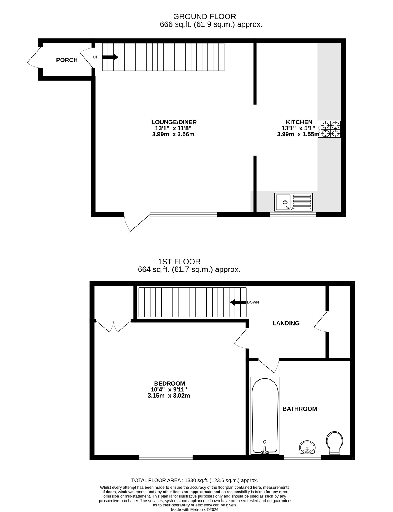
The accommodation comprises of an entrance lobby which leads into the good size lounge/diner with double glazed door leading to the enclosed rear garden. The kitchen offers a range of fitted wall and base units with integrated gas hob and electric oven. Upstairs is a good size bedroom with fitted wardrobe, a family bathroom and landing with fitted storage. Within easy reach of the M2/M20 motorway and close to local amenities. Please call the sales team for further details.Ground Floor

Lounge/Diner
13' 1" x 11' 8" (3.99m x 3.56m)

Kitchen
13' 1" x 5' 1" (3.99m x 1.55m)

First Floor

Bedroom
10' 4" x 9' 11" (3.15m x 3.02m)

Bathroom

Important Information

  • This is a Freehold property.

Property Ref: 30116124

Share:

Similar Properties

Charter Street, Chatham, ME4

2 Bedroom Terraced House | £200,000

An opportunity for the first time buyer or investor is this two double bedroom terraced home within walking distance to...

Hero Walk, Rochester, ME1

3 Bedroom Terraced House | £200,000

A rare opportunity to purchase a house in Rochester requiring significant refurbishment but when done would make a lovel...

Gordon Road, Chatham, ME4

1 Bedroom Semi-Detached Bungalow | £200,000

Being offered with no forward chain is this well maintained one bedroom semi detached bungalow. This is a great opportun...

Bright Road, Chatham, ME4

3 Bedroom Terraced House | £220,000

Being offered with no onward chain is this opportunity for the investor or first time buyer. On entering the first floor...

Silverweed Road, Chatham, ME5

2 Bedroom Terraced House | £245,000

Being offered with no forward chain is this two double bedroom extended house. This is an opportunity to put your own cr...

Ordnance Street, Chatham, ME4

2 Bedroom Terraced House | £245,000

An ideal first time buyers and investment property, located in a prime location as it offers excellent access to local a...

Greyfox Sales & Lettings (Walderslade)

Walderslade Village Centre, Walderslade, Walderslade, Kent, ME5 9LR

01634 672227

How much is your home worth?

Use our short form to request a valuation of your property.

Request a Valuation

Mortgage Calculator

Amount Borrowed: £
Total Amount Repayable: £
Total Monthly Payment: £
©2026 The Guild of Property Professionals. All rights reserved. Terms and Conditions | Privacy Policy | Cookie Policy | Complaints Policy | Members Login
The Guild of Property Professionals Trading Address: 121 Park Lane, London W1K 7AG. GPEA Limited. Registered in England & Wales.  Company No: 02819824.  Registered Office Address: 2 St. Stephen's Court, St. Stephen's Road, Bournemouth, Dorset, England, BH2 6LA.  VAT Registration No: 576 8795 61
Book a Property Valuation Update Cookies Preferences