Bramble Close, Tonbridge

Asking Price
£500,000
SSTC
This property listing is now SSTC

3 Bedroom Semi-Detached House for sale in Tonbridge

1 3 1
  • 3 Bedroom Family Home
  • Scope for Improvement (STPP)
  • Corner Plot
  • Front and Rear Gardens
  • No Chain
  • EPC Rating: E / Council Tax Band: E - £2,857.32 PA

Waghorn and Company are offering to the market this spacious, 3 bedroom, semi detached family home located in the sought after Bramble Close. The property is within walking distance of the popular Stocks Green Primary School,. The property has the added benefits of a generous plot, scope for improving and updating (STPP) and no forward chain. An early viewing is highly recommended.

Front Garden

To the front of the property is a block paved driveway with the remainder of the garden being mainly laid to lawn.

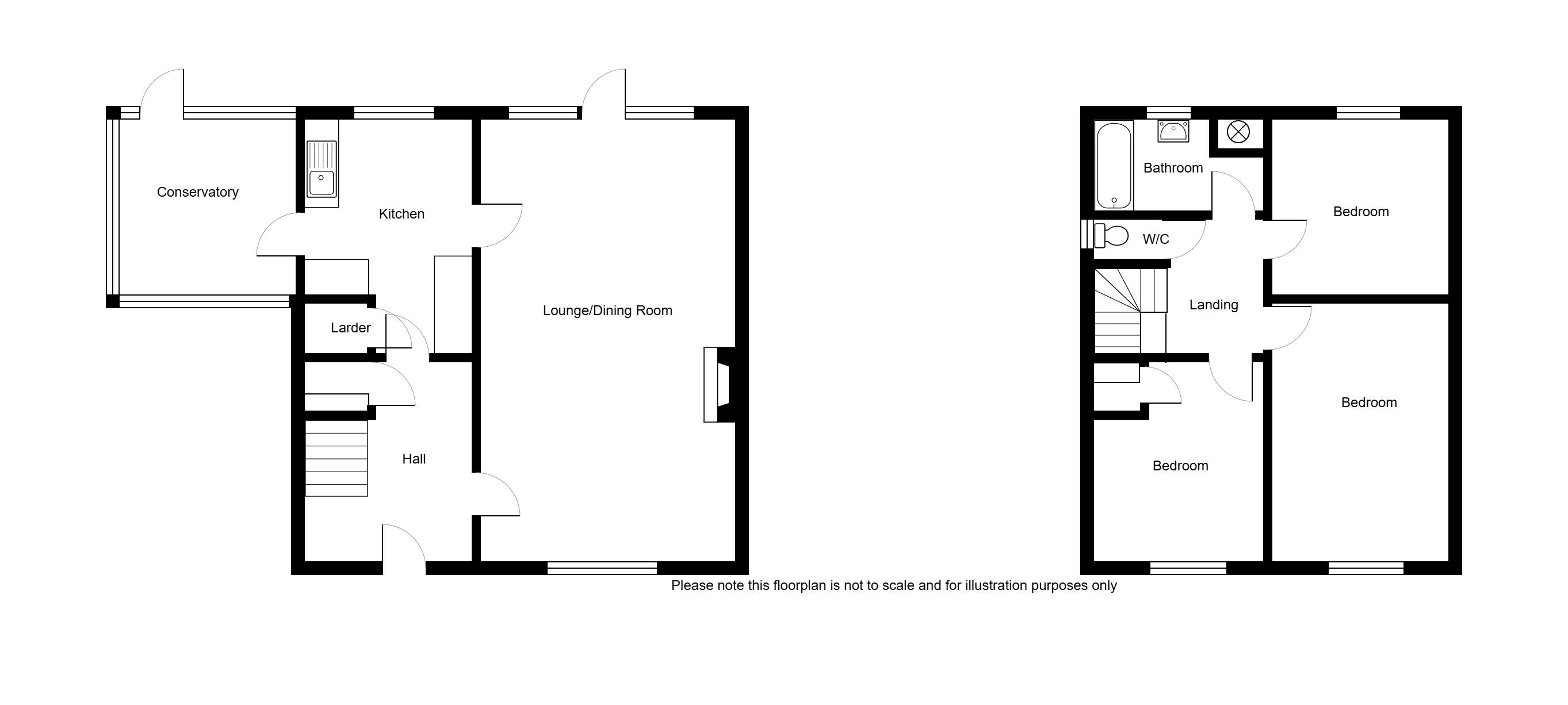
Entrance

Access to the property is via a canopied entrance porch with part glazed entrance door leading to entrance hall.

Entrance Hall

Double glazed window to side, stairs to first floor landing, doors to living room and kitchen, under stairs storage cupboard and electric storage heater.

Living Room
25' 6'' x 12' 4'' (7.77m x 3.76m)
Double glazed window to front, double glazed patio door to rear with matching side windows, door to kitchen, feature fireplace with tiled back and hearth and electric storage heater.

Kitchen
10' 0'' x 7' 10'' (3.05m x 2.39m)
Double glazed window to side, part glazed door to conservatory and part glazed door to rear garden, stainless steel sink and drainer with cupboards under and a further range of matching base and wall units, space for undercounter fridge / freezer, space for freestanding electric cooker, ceramic wall tiling, tiled flooring, larder cupboard with window to side and shelving.

Conservatory
9' 6'' x 7' 0'' (2.89m x 2.13m)
Double glazed to both side and rear, double glazed door with steps leading to rear garden.

First Floor Landing

Double glazed window to side, doors to bedrooms, bathroom and separate W/C and access to loft.

Bedroom 3
8' 3'' x 8' 10'' (2.51m x 2.69m)
Double glazed window to front.

Bedroom 1
10' 3'' x 14' 6'' (3.12m x 4.42m)
Double glazed window front, wall light points and electric storage heater.

Bedroom 2
10' 4'' x 10' 7'' (3.15m x 3.22m)
Double glazed window to rear and electric storage heater.

Separate W/C
2' 7'' x 4' 7'' (0.79m x 1.40m)
Double glazed frosted window to side and low level W/C.

Bathroom
7' 4'' x 5' 4'' (2.23m x 1.62m)
Double glazed frosted window to rear, panelled bath with electric power shower over, pedestal hand wash basin, airing cupboard with water tank and slatted shelving and ceramic wall tiling.

Tenure

Freehold

Important Information

  • This is a Freehold property.

Property Ref: WAG03032

Share:

Similar Properties

Tonbridge Road, Hildenborough

3 Bedroom Semi-Detached House | Guide Price £500,000

Open House Saturday 11th April between 11am and 1pm. We are truly honoured to have been chosen to market this wonderful...

Sullivan Road, Tonbridge

4 Bedroom Semi-Detached House | Guide Price £500,000

Guide Price £500,000- £525,000 An extended and substantial family home, ideally located close to local shops, favoured s...

Springwell Road, Tonbridge

3 Bedroom Semi-Detached House | Guide Price £500,000

Guide Price £500,000 - £525,000 Offered to the market by Waghorn and Company, this wonderful and immaculately presented...

Southdene, Halstead

2 Bedroom Semi-Detached House | Guide Price £525,000

Guide Price £500,000 - £525,000 Waghorn & Company are delighted to offer to the market this well-positioned home occupyi...

Ashden Walk, Tonbridge

3 Bedroom Semi-Detached House | Asking Price £525,000

A well-proportioned family home built by Gough Cooper, set within the sought-after Willow Lea development in North Tonbr...

Ashley Road, Hildenborough, Tonbridge

3 Bedroom Bungalow | Guide Price £525,000

Waghorn & Company are delighted to offer for sale this spacious and extended detached bungalow located in the much sough...

Waghorn & Company (Tonbridge)

Tonbridge, Kent, TN9 1DH

01732 808542

How much is your home worth?

Use our short form to request a valuation of your property.

Request a Valuation

Mortgage Calculator

Amount Borrowed: £
Total Amount Repayable: £
Total Monthly Payment: £
©2026 The Guild of Property Professionals. All rights reserved. Terms and Conditions | Privacy Policy | Cookie Policy | Complaints Policy | Members Login
The Guild of Property Professionals Trading Address: 121 Park Lane, London W1K 7AG. GPEA Limited. Registered in England & Wales.  Company No: 02819824.  Registered Office Address: 2 St. Stephen's Court, St. Stephen's Road, Bournemouth, Dorset, England, BH2 6LA.  VAT Registration No: 576 8795 61
Book a Property Valuation Update Cookies Preferences