Knowsley Way, Hildenborough, Tonbridge

Guide Price
£750,000

3 Bedroom House for sale in Tonbridge

2 3 1
  • Three Bedroom Detached Family Home
  • Garage and Driveway
  • Scope for Further Improvements & Extensions (STPP)
  • No Forward Chain
  • Good Size Front and Rear Gardens
  • EPC Rating: E / Council Tax Band F -£3,376.84 PA

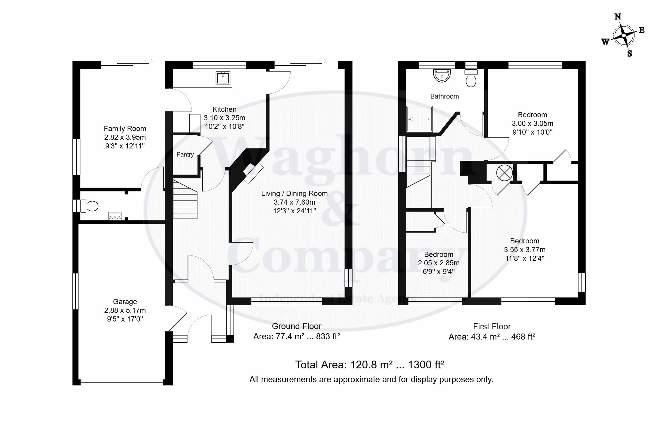
Guide Price £750,000 - £775,000 Waghorn and Company are proud to present to the market this well proportioned detached family home, which has been cherished by the same family for over 60 years. This property is nestled at the end of a long driveway with impressive frontage, located on one of Hildenborough's most sought after roads, ideally located for local shops, bus routes, highly regarded Schools and train station. This property has the added benefits of garage, mature front and rear gardens, scope for further improvement and extension (STPP) and no forward chain. An early viewing is highly recommended.

Front Garden

To the front of the property is a good size front garden with established tree shrubs plants and bushes, driveway and path leading to entrance porch. During the spring months the front lawns have an array of various spring flowers.

Front

Access to the property it via a double glazed entrance door with matching side windows, leading to entrance porch.

Entrance Porch

Double glazed windows to side, brick feature archway, door to garage and frosted glazed door with matching side windows to entrance hall.

Entrance Hall

Stairs to first floor landing, doors to living room, kitchen, under stairs storage cupboard and electric storage heater.

Living Room
24' 5'' x 12' 4'' (7.44m x 3.76m) (narrowing to 8' 2'' / 2.49m)
Double glazed window to front and side, double glazed sliding patio door to rear, door to kitchen, open fireplace with stone surround and mantle and two electric storage heaters.

Kitchen
8' 2'' x 10' 6'' (2.49m x 3.20m)
Double glazed window to rear, door to dining room, stainless steel sink set within worktop with cupboards under and a further range of matching base and wall unit, space and plumbing for washing machine, space and plumbing for dishwasher , space for electric oven, space for free standing fridge freezer, Pantry cupboard, ceramic wall tiling and electric storage heater.

Dining Room
9' 3'' x 12' 11'' (2.82m x 3.93m)
Double glazed window to side, double glazed sliding door to rear, door to downstairs cloakroom and electric storage heater.

Cloakroom
9' 2'' x 3' 1'' (2.79m x 0.94m)
Double glazed frosted window to side, low level W/C, floating hand wash basin, ceramic wall tiling, towel rail and electric radiator.

First Floor Landing

Double glazed window to side, doors to bedrooms, bathroom and access to loft (which is fully boarded with ladder access).

Bedroom 1
11' 7'' x 11' 8'' (3.53m x 3.55m)
Double glazed window to side and front, built in wardrobe, airing cupboard and electric storage heater.

Bedroom 2
10' 0'' x 9' 10'' (3.05m x 2.99m)
Double glazed window to rear, built in wardrobe and electric storage heater.

Bedroom 3
7' 0'' x 6' 8'' (2.13m x 2.03m)
Double glazed window to front, built in wardrobe and electric storage heater.

Family Bathroom
8' 4'' x 6' 11'' (2.54m x 2.11m)
Two double glazed frosted windows to rear, low level W/C, hand wash basin set within vanity unit, shower cubicle with power shower, extractor fan, wall mounted mirror, wall mounted mirrored cabinet, electric storage heater and electric heater.

Rear Garden

to the rear of the property is a paved patio area with built in pond and steps leading to the remainder of the garden being mainly laid to lawn with flowered borders with established shrubs, plants, trees and bushes, side pedestrian access and outside water tap.

Garage

Window to side, power and lighting, up and over door to front.

Tenure

Freehold

Important Information

  • This is a Freehold property.

Property Ref: EAXML10807_12808253

Share:

Similar Properties

Higham Lane, Tonbridge

4 Bedroom House | Asking Price £750,000

NO ONWARD CHAIN. Waghorn & Company are proud to offer to the market this deceptively spacious, 4-bedroom detached family...

Wyndham Avenue, Tonbridge

5 Bedroom House | Asking Price £700,000

Waghorn and Company are proud to offer this 4/5 bedroom semi-detached family home locatede in a private cul-de-sac just...

Cage Green Road, Tonbridge

4 Bedroom House | Asking Price £700,000

Waghorn & Company are proud to offer this impressive and attractive detached family home, conveniently located in Cage G...

Penshurst Road, Tonbridge

3 Bedroom Flat | Auction Guide Price £850,000

NO ONWARD CHAIN! Being Sold via Secure Sale online bidding. Terms & Conditions apply. Starting Bid £850,000. Waghorn & C...

Fairmans Lane, Brenchley

4 Bedroom House | Asking Price £895,000

Located on the edge of the popular village of Brenchley is this four-bedroom detached family home, featuring a large lan...

Hollow Trees Close, Leigh

4 Bedroom House | Asking Price £925,000

Situated on a generous corner plot within a prestigious modern private development, this extended four-bedroom detached...

Waghorn & Company (Tonbridge)

Tonbridge, Kent, TN9 1DH

01732 808542

How much is your home worth?

Use our short form to request a valuation of your property.

Request a Valuation

Mortgage Calculator

Amount Borrowed: £
Total Amount Repayable: £
Total Monthly Payment: £
©2026 The Guild of Property Professionals. All rights reserved. Terms and Conditions | Privacy Policy | Cookie Policy | Complaints Policy | Members Login
The Guild of Property Professionals Trading Address: 121 Park Lane, London W1K 7AG. GPEA Limited. Registered in England & Wales.  Company No: 02819824.  Registered Office Address: 2 St. Stephen's Court, St. Stephen's Road, Bournemouth, Dorset, England, BH2 6LA.  VAT Registration No: 576 8795 61
Book a Property Valuation Update Cookies Preferences