Penshurst Road, Tonbridge

Auction Guide Price
£850,000

3 Bedroom Flat for sale in Tonbridge

2 3 3
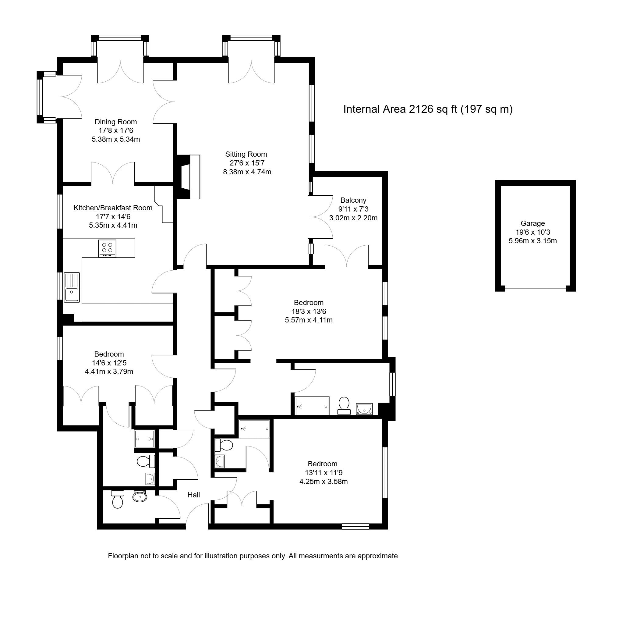
  • Square Footage Approximately 2,126 square foot/ Being sold via ‘Secure Sale’
  • Immediate ‘exchange of contracts’ available
  • Share Of Freehold
  • Garage and Allocated Parking
  • Communal Gardens & Private Balcony with South-West Facing Aspect
  • Residents Tennis Court & Use of a well-equipped gymnasium
  • EPC Rating B - Council Tax Band G- £3,886.92 PA

NO ONWARD CHAIN! Being Sold via Secure Sale online bidding. Terms & Conditions apply. Starting Bid £850,000. Waghorn & Company are thrilled to present to the market this truly exceptional three-bedroom apartment, proudly set within the prestigious Drummond Hall, part of the highly sought-after and exclusive Swaylands Estate, nestled in the picturesque village of Penshurst. This stunning home combines elegant period architecture with luxurious modern living, offering an unrivalled setting surrounded by beautifully maintained grounds and breath taking countryside views. An early viewing is highly recommended.

Overview

Spanning over 2,000 sq. ft., this exceptional apartment boasts one of the most desirable layouts within Drummond Hall. Thoughtfully designed and beautifully presented, it blends timeless elegance with contemporary sophistication to create a home that is both impressive and inviting. Residents of the prestigious Swaylands Estate enjoy access to 40 acres of meticulously landscaped communal grounds.

Accommodation

Stepping through the grand entrance hallway, you’re immediately met with a sense of space and elegance. High ceilings, generous room proportions, and beautiful architectural details create a welcoming yet refined atmosphere that continues throughout the home. The impressive 27ft main reception room forms the heart of the apartment, a stunning and versatile space centred around a feature fireplace, with dual-aspect windows and French doors opening onto a private balcony that enjoys sweeping, uninterrupted views across the countryside. A Juliet balcony adds even more natural light and perfectly frames the scenic surroundings. Adjoining the main reception, the day room is bright and inviting, with two further Juliet balconies that flood the space with light, ideal for relaxed mornings, reading, or evening entertaining. The kitchen/breakfast room combines style and practicality, fitted with bespoke cabinetry, sleek quartz worktops, and a comprehensive range of high-specification AEG appliances, including multiple ovens, a combi microwave, electric hob, built-in coffee machine, and wine fridge, perfect for those who love to cook and entertain. Off the central hallway are three well-proportioned double bedrooms, each offering a peaceful retreat. The principal suite features direct balcony access, extensive fitted wardrobes, and a luxurious en-suite shower room. The two additional bedrooms also include fitted storage and their own sumptuously finished en-suite shower rooms, each styled with high-quality fixtures and finishes. A contemporary guest bathroom completes the internal accommodation.

Auctioneers Additional Comments

Auctioneers Additional Comments
Pattinson Auction are working in Partnership with the marketing agent on this online auction sale and are referred to below as 'The Auctioneer'.

This auction lot is being sold either under conditional (Modern) or unconditional (Traditional) auction terms and overseen by the auctioneer in partnership with the marketing agent.

The property is available to be viewed strictly by appointment only via the Marketing Agent or The Auctioneer. Bids can be made via the Marketing Agents or via The Auctioneers website.

Please be aware that any enquiry, bid or viewing of the subject property will require your details being shared between both any marketing agent and The Auctioneer in order that all matters can be dealt with effectively.

The property is being sold via a transparent online auction.
In order to submit a bid upon any property being marketed by The Auctioneer, all bidders/buyers will be required to adhere to a verification of identity process in accordance with Anti Money Laundering procedures. Bids can be submitted at any time and from anywhere.
Our verification process is in place to ensure that AML procedure are carried out in accordance with the law.

The advertised price is commonly referred to as a ‘Starting Bid’ or ‘Guide Price’ and is accompanied by a ‘Reserve Price’. The ‘Reserve Price’ is confidential to the seller and the auctioneer and will typically be within a range above or below 10% of the ‘Guide Price’ / ‘Starting Bid’.
These prices are subject to change.


An auction can be closed at any time with the auctioneer permitting for the property (the lot) to be sold prior to the end of the auction.

A Legal Pack associated with this particular property is available to view upon request and contains details relevant to the legal documentation enabling all interested parties to make an informed decision prior to bidding. The Legal Pack will also outline the buyers’ obligations and sellers’ commitments. It is strongly advised that you seek the counsel of a solicitor prior to proceeding with any property and/or Land Title purchase.

Auctioneers Additional Comments
In order to secure the property and ensure commitment from the seller, upon exchange of contracts the successful bidder will be expected to pay a non-refundable deposit equivalent to 5% of the purchase price of the property. The deposit will be a contribution to the purchase price. A non-refundable reservation fee of up to 6% inc VAT (subject to a minimum of 6,000 inc VAT) is also required to be paid upon agreement of sale. The Reservation Fee is in addition to the agreed purchase price and consideration should be made by the purchaser in relation to any Stamp Duty Land Tax liability associated with overall purchase costs.

Both the Marketing Agent and The Auctioneer may believe necessary or beneficial to the customer to pass their details to third party service suppliers, from which a referral fee may be obtained. There is no requirement or indeed obligation to use these recommended suppliers or services.

Tenure

Share of Freehold
Service Charge £4,425.40 for the first 6 months has been paid for the first half of the year.
Ground Rent approx £225.00 per year

Location

Penshurst is a sought after Kent village surrounded by open countryside, yet within easy reach of commuter towns such as Tonbridge, Sevenoaks and Tunbridge Wells.

Important Information

  • This is a Share of Freehold property.

Property Ref: EAXML10807_12784305

Share:

Similar Properties

Higham Lane, Tonbridge

4 Bedroom House | Asking Price £750,000

NO ONWARD CHAIN. Waghorn & Company are proud to offer to the market this deceptively spacious, 4-bedroom detached family...

Knowsley Way, Hildenborough, Tonbridge

3 Bedroom House | Guide Price £750,000

Guide Price £750,000 - £775,000 Waghorn and Company are proud to present to the market this well proportioned detached f...

Wyndham Avenue, Tonbridge

5 Bedroom House | Asking Price £700,000

Waghorn and Company are proud to offer this 4/5 bedroom semi-detached family home locatede in a private cul-de-sac just...

Fairmans Lane, Brenchley

4 Bedroom House | Asking Price £895,000

Located on the edge of the popular village of Brenchley is this four-bedroom detached family home, featuring a large lan...

Hollow Trees Close, Leigh

4 Bedroom House | Asking Price £925,000

Situated on a generous corner plot within a prestigious modern private development, this extended four-bedroom detached...

Upper Green Road, Tonbridge

7 Bedroom House | Asking Price £1,400,000

Set within the heart of the sought-after village of Shipbourne and located within both a Conservation Area and an Area o...

Waghorn & Company (Tonbridge)

Tonbridge, Kent, TN9 1DH

01732 808542

How much is your home worth?

Use our short form to request a valuation of your property.

Request a Valuation

Mortgage Calculator

Amount Borrowed: £
Total Amount Repayable: £
Total Monthly Payment: £
©2026 The Guild of Property Professionals. All rights reserved. Terms and Conditions | Privacy Policy | Cookie Policy | Complaints Policy | Members Login
The Guild of Property Professionals Trading Address: 121 Park Lane, London W1K 7AG. GPEA Limited. Registered in England & Wales.  Company No: 02819824.  Registered Office Address: 2 St. Stephen's Court, St. Stephen's Road, Bournemouth, Dorset, England, BH2 6LA.  VAT Registration No: 576 8795 61
Book a Property Valuation Update Cookies Preferences