Fairmans Lane, Brenchley

Asking Price
£895,000

4 Bedroom House for sale in Tonbridge

3 4 2
  • Early viewing highly recommended
  • Immediate ‘exchange of contracts’ available
  • Unlisted Character Home
  • Private Driveway with Detached Garage
  • Wealth of Period Features
  • EPC Rating E / Council Tax Band G- £3,912.00 PA

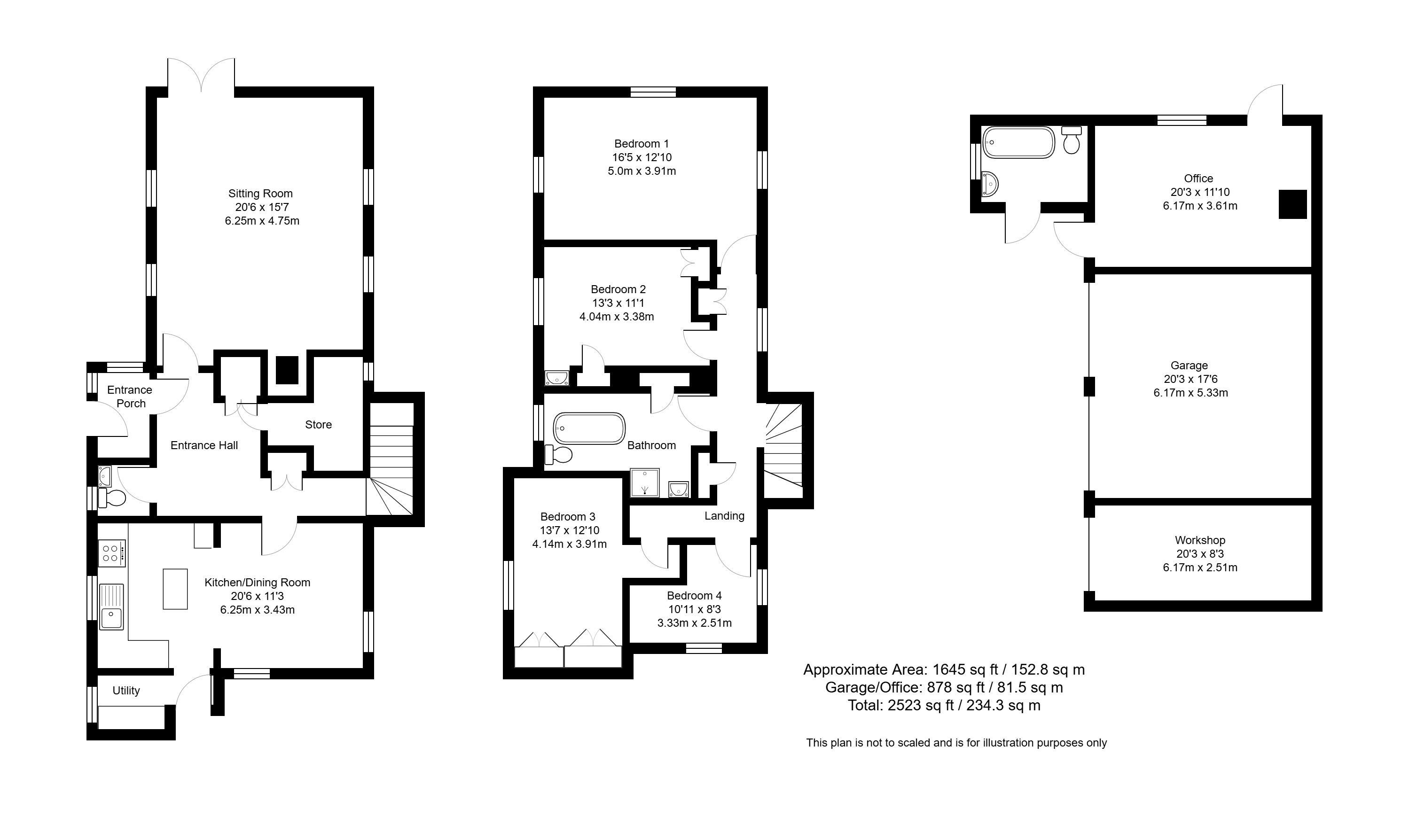
Located on the edge of the popular village of Brenchley is this four-bedroom detached family home, featuring a large landscaped garden, a detached double garage with workshop, office and bathroom, and ample parking. The property also includes approximately 3.32 acres of land plus an additional paddock, all set in an enviable rural position. This property is priced to sell, offering exceptional value for buyers seeking space, versatility, and countryside living.



Auctioneers Additional Comments Pattinson Auction are working in Partnership with the marketing agent on this online auction sale and are referred to below as 'The Auctioneer'. This auction lot is being sold either under conditional (Modern) or unconditional (Traditional) auction terms and overseen by the auctioneer in partnership with the marketing agent. The property is available to be viewed strictly by appointment only via the Marketing Agent or The Auctioneer. Bids can be made via the Marketing Agents or via The Auctioneers website. Please be aware that any enquiry, bid or viewing of the subject property will require your details being shared between both any marketing agent and The Auctioneer in order that all matters can be dealt with effectively. The property is being sold via a transparent online auction. In order to submit a bid upon any property being marketed by The Auctioneer, all bidders/buyers will be required to adhere to a verification of identity process in accordance with Anti Money Laundering procedures. Bids can be submitted at any time and from anywhere. Our verification process is in place to ensure that AML procedure

Overview

Believed to date back to the 17th century and formerly comprising two separate cottages known as “Little Echoes,” Old Herring City is an enchanting and characterful detached property. With its colour-washed brick lower elevation, tile-hung and weatherboarded upper floors beneath a tiled roof, this home offers timeless charm and architectural appeal.

Internally, the property benefits from generous ceiling heights and an abundance of original period features, including exposed wall and ceiling timbers, panelled and latched doors, and deep skirting boards. The current owners have created a beautifully landscaped garden.

One of the home’s most appealing features is the triple-aspect sitting room. Additionally, the detached garage block presents potential for conversion to a self-contained annexe, subject to the necessary planning consents.

Entrance

The long private driveway is flanked by impressive mature trees, a small bridge across a tree lined stream.

Accommodation

Entrance Porch with brick flooring leads to a part-glazed door opening into the Entrance Hall, which includes a built-in cupboard housing the oil-fired boiler. The hall is laid with stone flooring.

A generously sized store room/study area offers hanging space and a walk-in layout, complemented by an under stairs cupboard.
There is a tiled Cloakroom/WC.

The Triple Aspect Sitting Room boasts exposed ceiling timbers and a brick fireplace with a wood-burning stove on the hearth, accompanied by shelving on one side. Glazed double doors open to the side terrace. The room is finished with oak flooring.

The Triple Aspect Kitchen/Dining Room features extensive work surfaces above a range of cupboards and drawers. A recessed Butler’s sink, double larder cupboard, and space for a range-style cooker with stainless steel extractor hood. Integrated fridge and dishwasher, along with eye-level cupboards, complete the space. Oak laminate flooring and deep wood skirting boards add warmth and character.

A separate Utility Room provides plumbing and space for a washing machine and tumble dryer, and has an external door to the side of the property.

The First Floor is accessed via a single flight of stairs leading to a landing with built-in cupboards.

The Triple Aspect principle Bedroom features exposed ceiling timbers, creating a sense of character and space.
There are two additional double bedrooms, each with fitted wardrobes, and a well-proportioned single bedroom with a double aspect.

The Family Bathroom is fitted with a white suite including a slipper-style bath, separate shower, pedestal wash basin, and low-level WC. A built-in airing cupboard completes the space.

Externally

The gardens are mainly to the front of the house and are beautifully landscaped with mature trees, shrubs, and planting. A stream runs through the grounds, complemented by a raised paved terrace with a covered barbecue area overlooking the stream and garden, a truly picturesque spot to relax and entertain. Beyond the parking area, a further five-bar gate provides access to two enclosed paddocks. In all, the property extends to approximately 3.32 acres.

Location

This stunning property is in an enviable rural position on the edge of Brenchley village. With is 13th Century church, Brenchley is situated in an Area Of Outstanding Natural Beauty and offers a plethora of facilities including post office/newsagents and public house. The location offers a variety of outstanding schools in the surrounding areas, including Brenchley Primary School, boys and girls grammar schools in Tonbridge and Tunbridge Wells, as well as well-regarded preparatory schools including Holmewood House, Hilden Grange and Somerhill.

The mainline stations of Paddock Wood and Tonbridge provide direct links to London, while the A21 provides access to the M25 motorway networks.

Tenure

Freehold

Important Information

  • This is a Freehold property.

Property Ref: EAXML10807_12687726

Share:

Similar Properties

Ridgeway Crescent, Tonbridge

3 Bedroom House | Asking Price £850,000

Waghorn and Company are proud to offer to the market this spacious, detached family home located in one of the most soug...

Penshurst Road, Tonbridge

3 Bedroom Flat | Auction Guide Price £850,000

NO ONWARD CHAIN! Being Sold via Secure Sale online bidding. Terms & Conditions apply. Starting Bid £850,000. Waghorn & C...

Knowsley Way, Tonbridge

3 Bedroom House | Asking Price £795,000

Waghorn and Company are proud to present to the market this well proportioned detached family home, which has been cheri...

Upper Green Road, Tonbridge

7 Bedroom House | Asking Price £1,400,000

Set within the heart of the sought-after village of Shipbourne and located within both a Conservation Area and an Area o...

Powder Mill Lane, Leigh

6 Bedroom House | Asking Price £1,500,000

Waghorn and Company are delighted to present to the market this spacious six-bedroom detached family home in the sought-...

Hale Street, East Peckham, Tonbridge

6 Bedroom House | Asking Price £1,800,000

An impressive six bedroom Grade II listed double fronted former farmhouse with 4852 square feet of beautifully presented...

Waghorn & Company (Tonbridge)

Tonbridge, Kent, TN9 1DH

01732 808542

How much is your home worth?

Use our short form to request a valuation of your property.

Request a Valuation

Mortgage Calculator

Amount Borrowed: £
Total Amount Repayable: £
Total Monthly Payment: £
©2025 The Guild of Property Professionals. All rights reserved. Terms and Conditions | Privacy Policy | Cookie Policy | Complaints Policy | Members Login
The Guild of Property Professionals Trading Address: 121 Park Lane, London W1K 7AG. GPEA Limited. Registered in England & Wales.  Company No: 02819824.  Registered Office Address: 2 St. Stephen's Court, St. Stephen's Road, Bournemouth, Dorset, England, BH2 6LA.  VAT Registration No: 576 8795 61
Book a Property Valuation Update Cookies Preferences