Ridgeway Crescent, Tonbridge

Asking Price
£850,000

3 Bedroom House for sale in Tonbridge

2 3 1
  • Three Bedroom Detached Family Home
  • 200ft (approx.) Garden
  • Driveway and Garage
  • Scope for Further Improvement and Extension (STPP)
  • Downstairs Cloakroom & Family Bathroom
  • EPC Rating- D / Council Tax Band F £3,403.36

Waghorn and Company are proud to offer to the market this spacious, detached family home located in one of the most sought-after roads in Tonbridge. the property offers generous and well appointed accommodation and is complimented by a substantial rear garden extending to approximately 200ft, with the added benefit of good size rooms, large driveway to front and scope for further improvement and extension (STPP). An early viewing is highly recommended.

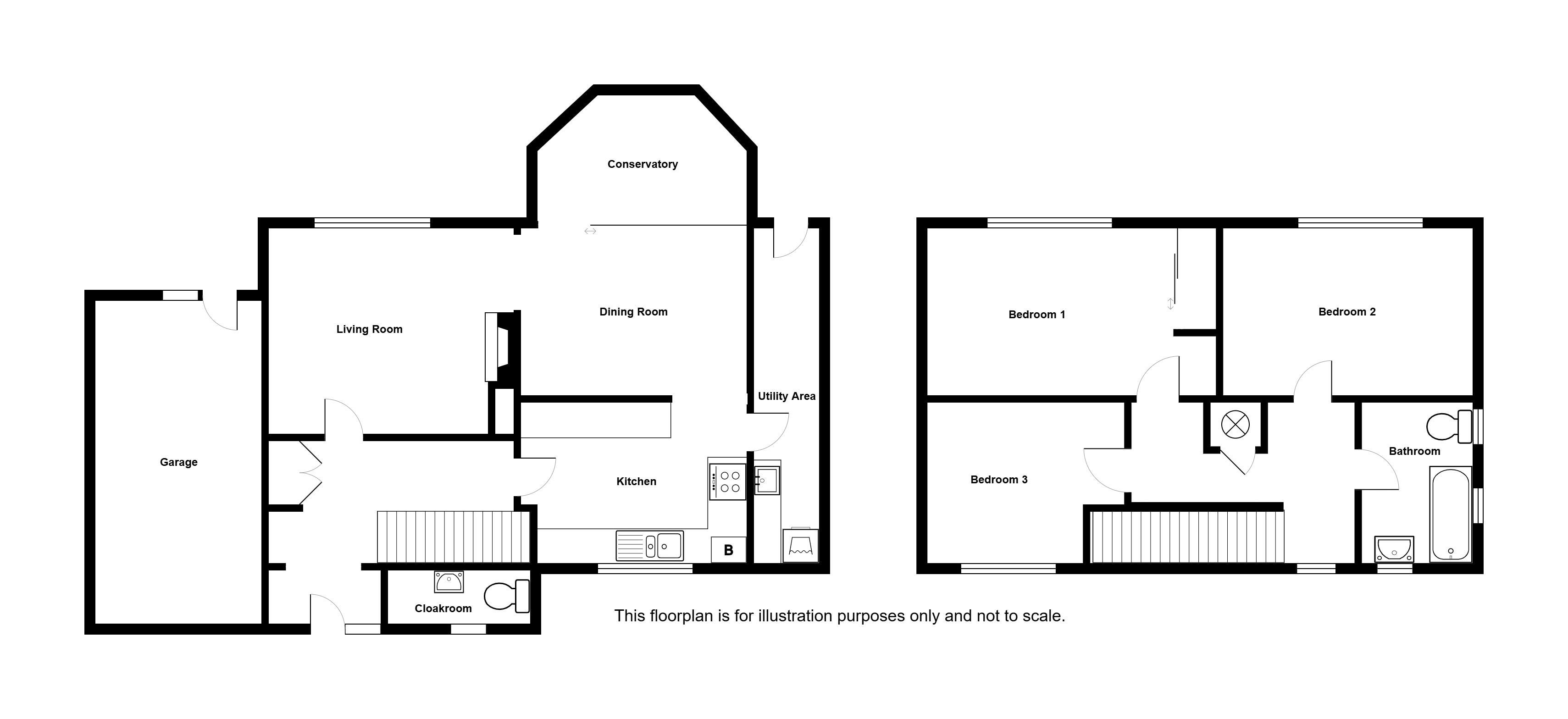
Front

To the front of the property is a block paved driveway with side boarders housing and array of established shrubs plants and bushes.

Entrance

Access is via a glazed entrance door with matching side window, leading to entrance hall.

Entrance Hall

Doors to downstairs cloakroom, living room and kitchen, coats cupboard, under stairs storage, stairs to first floor landing and radiator.

Downstairs Cloakroom
3' 2'' x 7' 0'' (0.96m x 2.13m)
Frosted porthole window to front, low level w/c floating hand wash basin with splash back tiling and radiator.

Living Room
14' 5'' x 14' 0'' (4.39m x 4.26m)
Double glazed window to rear, open double doorway to dining room, feature fireplace, shelving and cupboard within chimney breast recess and radiator.

Dining Room
10' 6'' x 11' 1'' (3.20m x 3.38m)
Double glazed sliding door to conservatory, open to kitchen and radiator.

Conservatory
10' 11'' x 10' 1'' (3.32m x 3.07m)
Double glazed windows to both sides and rear and double doors leading to rear garden

Rear Garden

An impressive 200ft (approx.) garden with a paved patio area and the remainder of the garden being mainly laid to lawn with side flowered boarders housing and array of established, shrubs, trees, plants and bushes. access to garage.

Garage

Metal up and over door to front, window to rear and door to rear.

Kitchen
10' 5'' x 8' 10'' (3.17m x 2.69m)
Double glazed window to front, door to utility area, one and a half bowl sink and drainer with cupboards under and a further range of matching base and wall units, integrated dishwasher, inset electric hob with electric oven under and extractor fan over and ceramic wall tiling.

Utility Area
4' 5'' x 15' 6'' (1.35m x 4.72m)
double glazed window to front, sink set within work top with splashback tiling, space and plumbing for washing machine, tiled flooring and door to rear garden

First Floor Landing

Double glazed window to front, doors to bedrooms, bathroom, airing cupboard and access to loft.

Family Bathroom
4' 11'' x 8' 10'' (1.50m x 2.69m)
Two double glazed frosted windows to side, double glazed window to front, panelled bath with mixer taps and shower over, low level W/C, pedestal hand wash basin, ceramic wall tiling, electric shaver socket and heated chrome towel rail.

Bedroom 2
11' 9'' x 10' 6'' (3.58m x 3.20m)
Double glazed window to rear and radiator.

Bedroom 1
14' 6'' x 10' 11'' (4.42m x 3.32m)
Double glazed window to rear, built in wardrobe with sliding door and radiator.

Bedroom 3
9' 0'' x 11' 2'' (2.74m x 3.40m)
Double glazed window to front and radiator.

Tenure

Freehold

Important Information

  • This is a Freehold property.

Property Ref: EAXML10807_12735495

Share:

Similar Properties

Penshurst Road, Tonbridge

3 Bedroom Flat | Auction Guide Price £850,000

NO ONWARD CHAIN! Being Sold via Secure Sale online bidding. Terms & Conditions apply. Starting Bid £850,000. Waghorn & C...

Knowsley Way, Tonbridge

3 Bedroom House | Asking Price £795,000

Waghorn and Company are proud to present to the market this well proportioned detached family home, which has been cheri...

Higham Lane, Tonbridge

4 Bedroom House | Asking Price £750,000

NO ONWARD CHAIN. Waghorn & Company are proud to offer to the market this deceptively spacious, 4-bedroom detached family...

Fairmans Lane, Brenchley

4 Bedroom House | Asking Price £895,000

Located on the edge of the popular village of Brenchley is this four-bedroom detached family home, featuring a large lan...

Upper Green Road, Tonbridge

7 Bedroom House | Asking Price £1,400,000

Set within the heart of the sought-after village of Shipbourne and located within both a Conservation Area and an Area o...

Powder Mill Lane, Leigh

6 Bedroom House | Asking Price £1,500,000

Waghorn and Company are delighted to present to the market this spacious six-bedroom detached family home in the sought-...

Waghorn & Company (Tonbridge)

Tonbridge, Kent, TN9 1DH

01732 808542

How much is your home worth?

Use our short form to request a valuation of your property.

Request a Valuation

Mortgage Calculator

Amount Borrowed: £
Total Amount Repayable: £
Total Monthly Payment: £
©2025 The Guild of Property Professionals. All rights reserved. Terms and Conditions | Privacy Policy | Cookie Policy | Complaints Policy | Members Login
The Guild of Property Professionals Trading Address: 121 Park Lane, London W1K 7AG. GPEA Limited. Registered in England & Wales.  Company No: 02819824.  Registered Office Address: 2 St. Stephen's Court, St. Stephen's Road, Bournemouth, Dorset, England, BH2 6LA.  VAT Registration No: 576 8795 61
Book a Property Valuation Update Cookies Preferences